Множественный выбор
Выбрать номинацию

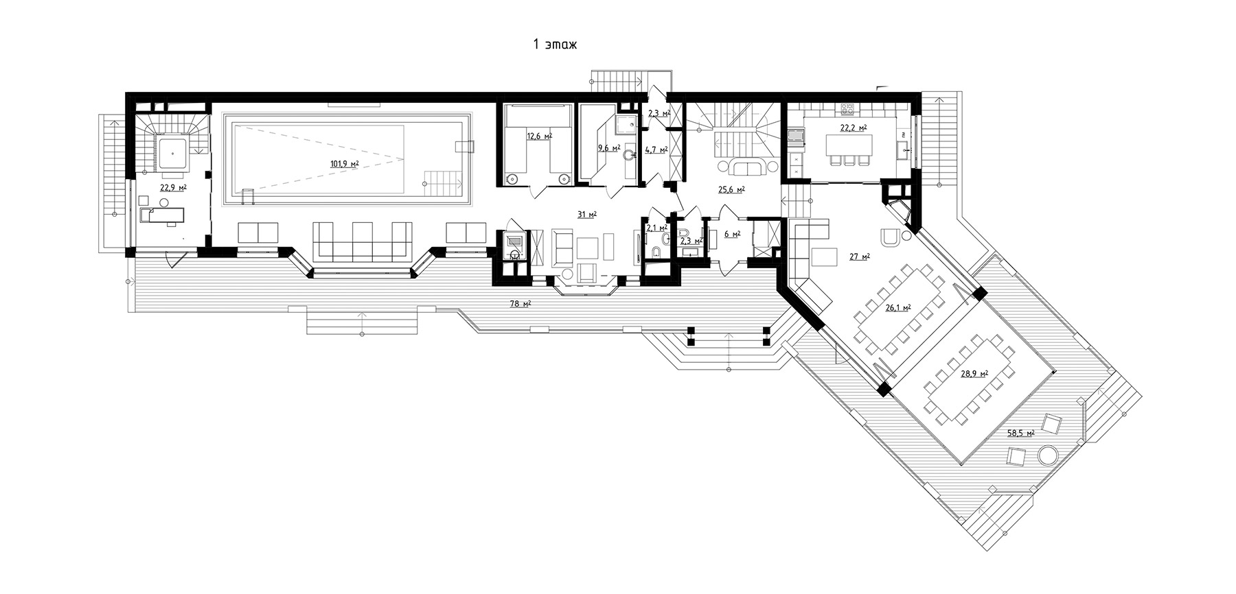
Дом с зоной спа

Протяженность здания в длину обусловила вытянутая конфигурация участка. Благодаря компоновке помещений под разноуровневыми крышами фасад приобрел динамичность и выразительность.

Помимо гостиной, кухни, столовой, входной зоны на первом этаже размещена внушительная спа-зона с 11-метровым бассейном, зоной отдыха, хаммамом, парной, массажным кабинетом и гидромассажной ванной. Последняя занимает угловое помещение с панорамными окнами, через которые открывается прекрасный вид на сад. На втором этаже располагаются спальни и спортивый зал.

Зона гостиной удачно примыкает к кухне и к холлу, а выступающий объем столовой, развернутый под углом 45 градусов открывает лучшие виды на участок в его лесной части. Панорамные раздвижные окна на три стороны стирают границы между природным окружением и интерьером. Идея единения с природой реализована в полной мере в остекленном, как зимний сад, объеме, который может объединяться с зоной столовой. В этом случае здесь поместится стол на 30 персон, а пространство трансформируется в банкетный зал.

Клинкерный кирпич, белый камень, декоративные вставки из стекла, панорамные окна — все это отражает авторское прочтение американского модерна.

Выставка конкурсных проектов
ВЫСТАВКА КРАСИВЫЕ ДОМА - 2026

ФОТОГАЛЕРЕЯ
ЭКСПОЗИЦИИ
КОНКУРСНЫХ
ПРОЕКТОВ

КАК ЭТО БЫЛО
Выставка конкурсных проектов проходит дважды в год (Весна | Осень)

Отзывы

Можно использовать **жирный**, *курсив*, [ссылку](https://example.com), списки через - или 1.
Пока отзывов нет. Будьте первым.