Множественный выбор
Выбрать номинацию

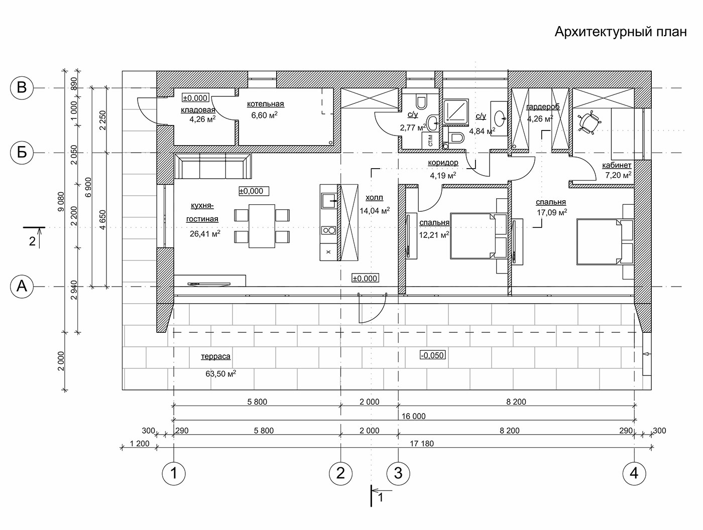
Дом в Чехове

Одноэтажный дом с плоской кровлей спроектирован для участка вблизи г. Чехова.

Внутри размещены кухня-гостиная, 2 спальни, кабинет и технические помещения.

Дом правильной прямоугольной формы отделан керамогранитом. Площадь дома 110 км м.

Все парадные внутренние помещения имеют панорамное остекление, объединены общей террасой и обращены во двор.

Выставка конкурсных проектов
ВЫСТАВКА КРАСИВЫЕ ДОМА - 2026

ФОТОГАЛЕРЕЯ
ЭКСПОЗИЦИИ
КОНКУРСНЫХ
ПРОЕКТОВ

КАК ЭТО БЫЛО
Выставка конкурсных проектов проходит дважды в год (Весна | Осень)

Отзывы

Можно использовать **жирный**, *курсив*, [ссылку](https://example.com), списки через - или 1.
Пока отзывов нет. Будьте первым.