Множественный выбор
Выбрать номинацию

Дом в горах

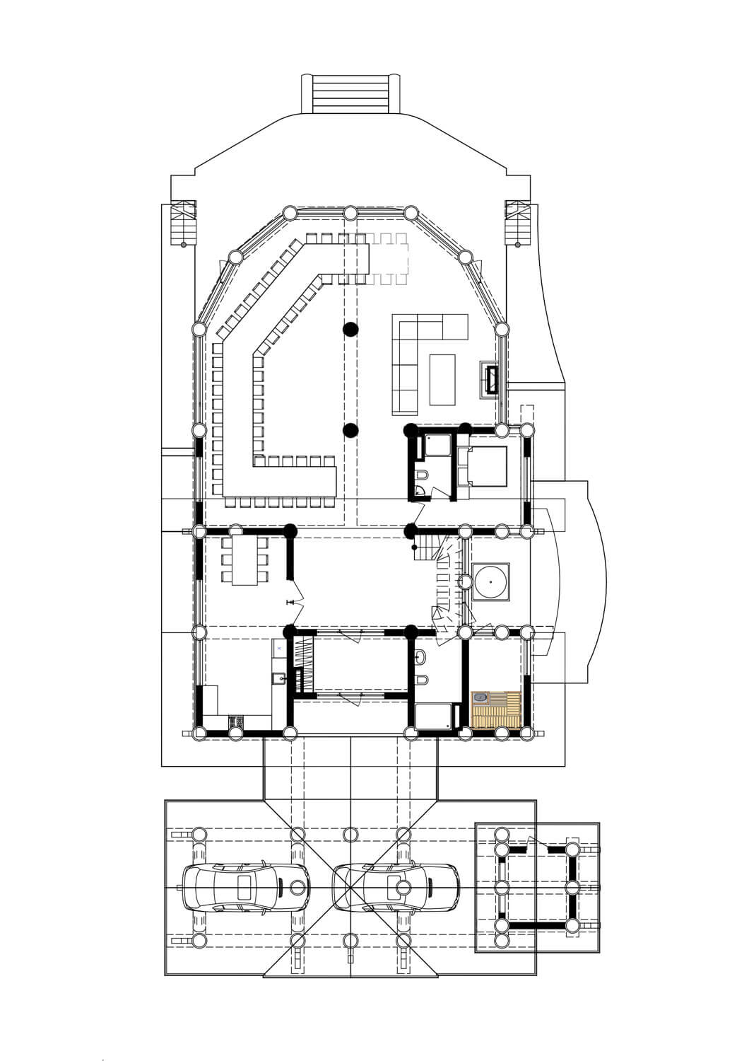
Чем интересен этот дом? Со всех сторон его окружают горы. Соседи могли бы быть только с одной из границ участка. А это «разрешение» на огромные панорамные окна, которым и воспользовались. Обязательных условий при проектировании было несколько:

-максимально открытая гостиная-столовая;
-возможность разместить в ней 70-80 человек за одним столом (я несколько раз переспрашивала, количество гостей единовременно указано верно);
-одна спальня на первом этаже для пожилой мамы, остальные на верху и максимально изолированы от зоны приема гостей;
-поместить где-нибудь небольшую сауну, желательно с видом и видом не на соседей;
-котельная – обязательно отдельно стоящее здание, для безопасности

Выполнение этих условий – в планировках.

Характеристики дома:
Общая площадь дома 356,5 м.кв., площадь помещений 291,05 м.кв.
Дом вписан на участок с горным рельефом. В нем можно выделить три объема:
Часть для гостей. Это 1 этаж, гостиная-столовая с панорамными окнами и видом на горы.
Часть для хозяев. Это часть 1 этажа и весь второй этаж.
Навес для машин, связанный с домом и с котельной. Все три блока различаются высотой и вариантами заполнения (или отсутствием заполнения как в случае с навесом) пространства между кедровыми столбами.
Дом спроектирован в технологии postandbeam, основной материал – кедр, средний диаметром 48-50-60 см по вершине. Это довольно массивные, основательные столбы и балки. Дом должен выделяться в округе, при этом хорошо вписываться в пейзаж.
Пространство между столбами заполняется остеклением либо классическим каркасом с обшивкой доской.
Фундамент лента со сваями, материал кровли плоская керамическая черепица.

Выставка конкурсных проектов
ВЫСТАВКА КРАСИВЫЕ ДОМА - 2026

ФОТОГАЛЕРЕЯ
ЭКСПОЗИЦИИ
КОНКУРСНЫХ
ПРОЕКТОВ

КАК ЭТО БЫЛО
Выставка конкурсных проектов проходит дважды в год (Весна | Осень)

Отзывы

Можно использовать **жирный**, *курсив*, [ссылку](https://example.com), списки через - или 1.
Пока отзывов нет. Будьте первым.