Множественный выбор
Выбрать номинацию

Дом в Крыму*

Дом находится на очень крутом склоне с заездом на участок с верхней стороны, поэтому не совсем обычно спланирован.

Вход в дом находится на 3-м уровне. Там же расположены все помещения общего назначения. Дом рассчитан на семью из 3-х человек.

На третьем этаже дома расположены: гостиная, кухня, столовая, кабинет, а также санузел и гардероб. Отсюда открывается шикарный вид на море, поэтому этаж с трех сторон окружен террасой, на которую можно выйти из любой комнаты. Со стороны кухни и столовой расположена зона барбекю.

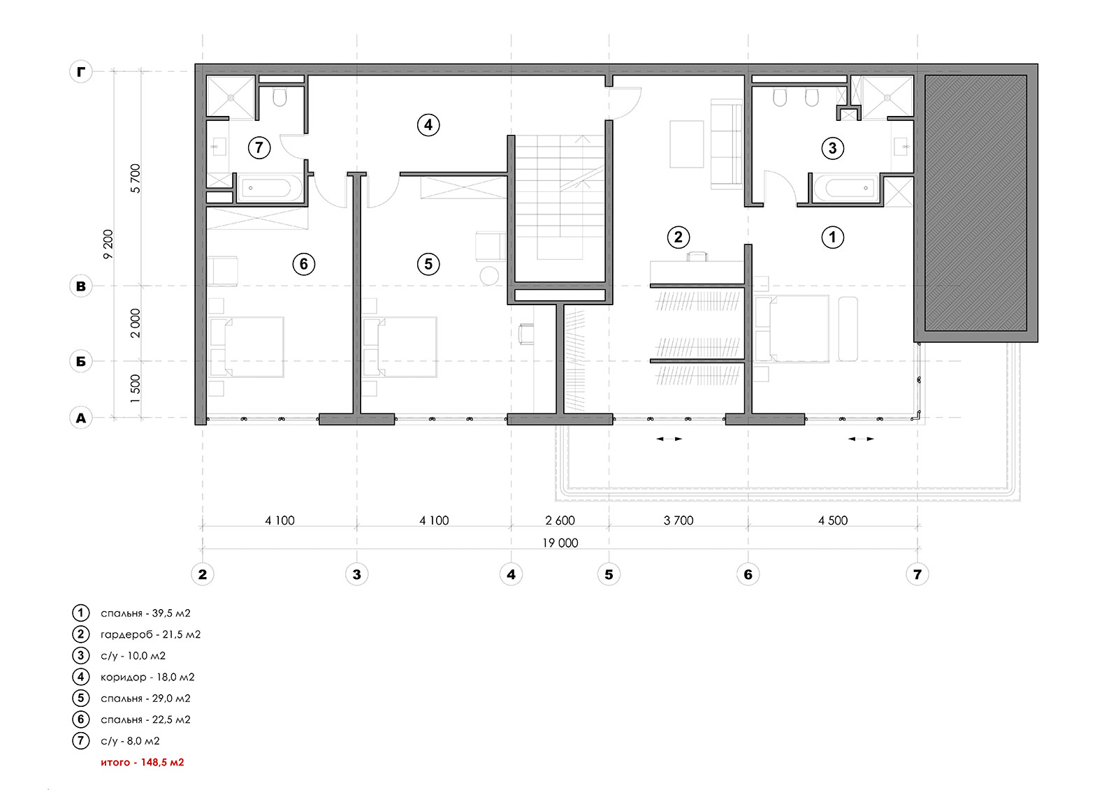
На втором этаже находится хозяйская спальня с просторной гардеробной и собственным санузлом. Также на этаже есть две гостевые спальни и гостевой санузел. В хозяйской части расположена просторная терраса.

На первом этаже находится отдельная квартира для бабушки и рядом квартира для ее сиделки, несколько технических помещений, мастерская и винный погреб. Есть небольшая СПА зона с парной и сауной. На придомовой территории расположен открытый бассейн.

Конструкция стен дома — ЖБ монолит.
Финишная отделка фасада — натуральный камень и деревянная доска покрытая тонированным лаком.

Технико-экономические показатели:
Площадь застройки — 275 м²
Общая площадь дома — 420 м²
Количество этажей — 3

Выставка конкурсных проектов
ВЫСТАВКА КРАСИВЫЕ ДОМА - 2026

ФОТОГАЛЕРЕЯ
ЭКСПОЗИЦИИ
КОНКУРСНЫХ
ПРОЕКТОВ

КАК ЭТО БЫЛО
Выставка конкурсных проектов проходит дважды в год (Весна | Осень)

Отзывы

Можно использовать **жирный**, *курсив*, [ссылку](https://example.com), списки через - или 1.
Пока отзывов нет. Будьте первым.