Дом в Малых Корелах
Дом для отдыха на территории музея деревянного зодчества и народного искусства Северных районов России «Малые Корелы».
Загородный проект дома с баней, террасой и барбекю для строительства в Архангельской области, деревне Малые Корелы. Это единственное место, где можно окунуться в незабываемую атмосферу прежнего Севера. Проект дома хранит в себе секреты строительства и передает условия образа жизни и особенности быта крестьян юго-западных районов Архангельской области.
За основу концепции для разработки объемно-колористического решения фасада здания были взяты мотивы рисунков мезенской росписи. Основные цвета мезенской росписи: черный — сажа (природный пигмент, состоящий из гидрата оксида железа с примесью глины) и красный — «земляная краска», охра (аморфный углерод).
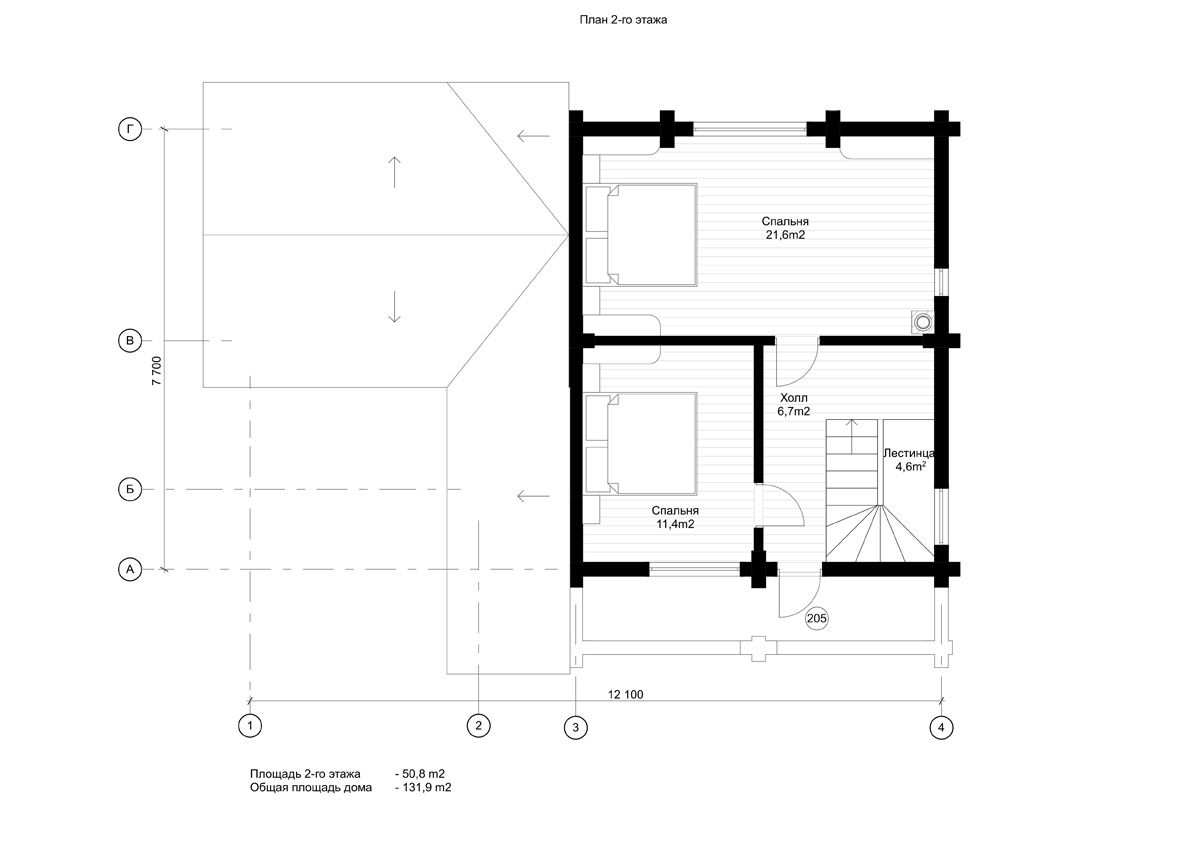
Проектируемое здание представляет собой двухэтажное строение, прямоугольной формы в плане, с жилыми и банными помещениями, верандой для барбекю. Стены дома выполнены из бревен круглого диаметра, которые обрабатываются природными пигментами, как и в мезенской росписи (гидрид оксида железа, примеси глины, охры), для получения выразительной цветовой гаммы и полной стилизации объекта. Кровля здания двускатная, с покрытием белой ПВХ-мембраной. В кровле предусмотрено мансардное окно-«полусфера».








