Дом в поселке Миллениум Парк
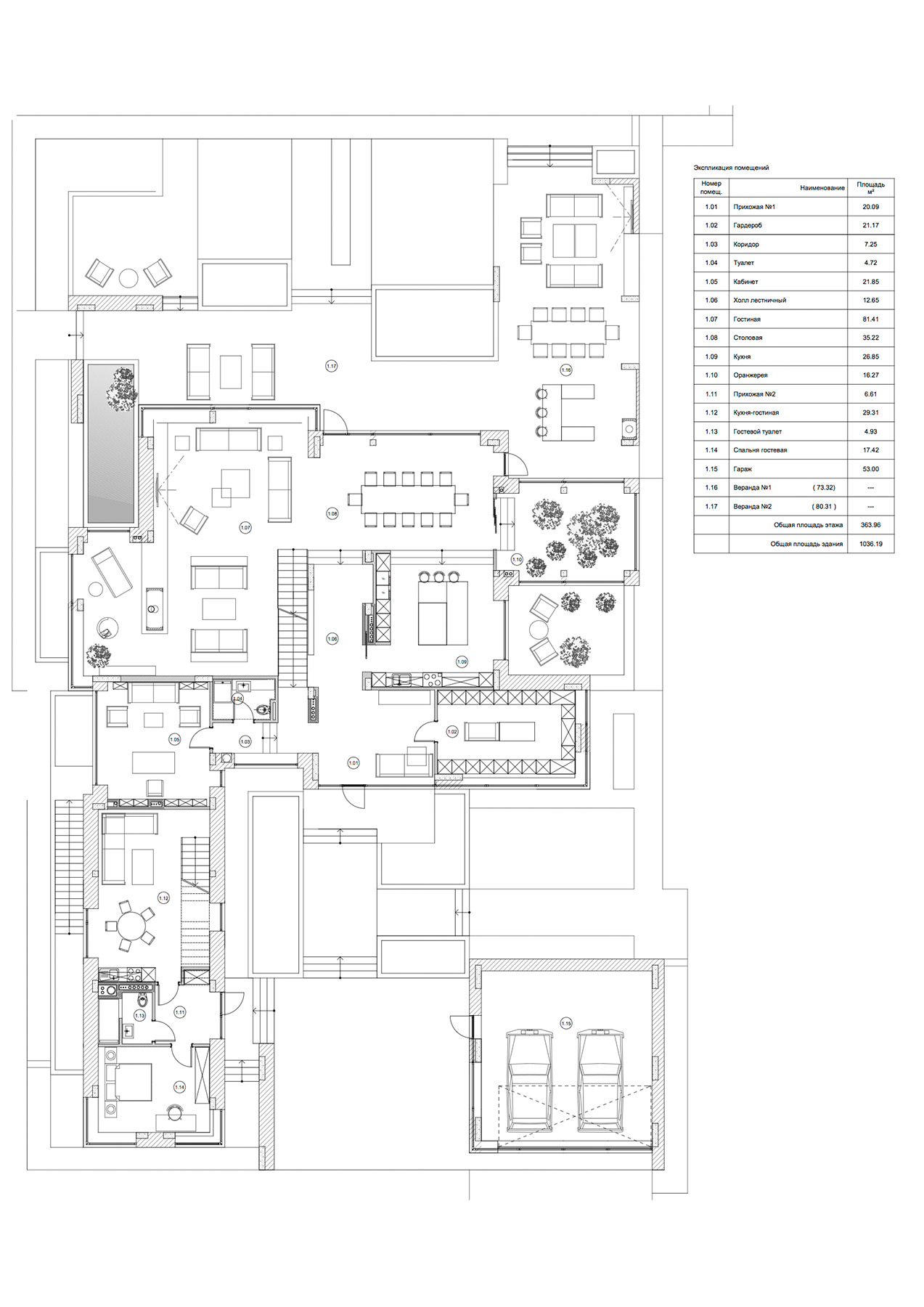
Дом общей площадью 1000 м² предназначен для большой семьи. Участок, отведенный под застройку, имеет неровный рельеф. Что предоставило авторам проекта возможность сделать террасированное сложное пространство как снаружи, так и внутри дома.
Концепция перетекающих друг в друга объемов обусловила объединение трех этажей в одно целое. При этом постарались выделить объем общественной зоны, сделать его более монолитным, в том числе и за счет цвета, оформив фасады темным сланцем. Блок приватной зоны спален, наоборот, сделали более структурированным, легким и в светлом материале. Также было придумано решение с патио на цокольном этаже, которое дает возможность получить в зоне бассейна хорошо освещенное пространство с окнами в пол и выходом на террасу.











