Дом в поселке Репино
Архитекторы, руководствуясь принципами органической архитектуры, постарались гармонично интегрировать дом в окружающий ландшафт. Объемно-пространственная композиция основана на использовании горизонтальных линий и приземистых объемов, что позволяет создать гармоничную архитектуру, являющуюся естественным продолжением окружающей природной среды.
В отделке фасадов использованы натуральные природные материалы: камень, дерево, стекло, керамика, благодаря чему образ дома не спорит с окружающей средой. Угловые окна и витражи делают образ воздушным, размывая границы между внешним и внутренним пространством. Большие свесы кровли подчеркивают горизонтальность архитектуры дома.
В доме широко применяются угловое остекление, которое позволяет максимально освещать помещения в течение дня, избегая темных углов.
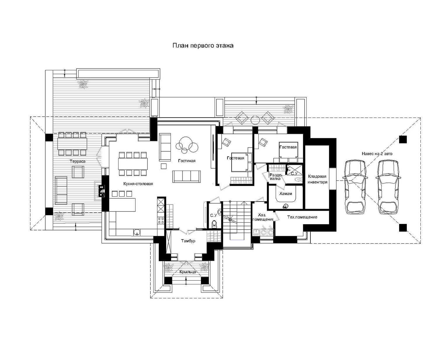
Из зоны столовой можно попасть на крытую террасу с уютной зоной отдыха и барбекю.
На втором этаже расположены детские комнаты и спальня родителей, из которой можно попасть на открытую большую террасу с уличной гидромассажной ванной.










