Дом в Репино
Загородный дом находится в элитном коттеджном поселке «Репинские дачи» в окружении соснового леса. Он построен на живописном берегу реки Сестры, и коттедж, по замыслу архитекторов, призван дополнять окружающий ландшафт.
Оформление дома тяготеет к современному минималистскому стилю: без обилия фасадного декора и буйства красок. Он не конфликтует с прекрасным хвойным лесом. Придомовая территория приспособлена для неспешных прогулок и семейных пикников.
В коттедже присутствуют все атрибуты комфорт-класса: гараж и удобная входная зона. Остекление от пола до потолка позволяет круглый год любоваться окружающими видами. Зимой и летом за окном будто сменяются полотна русских художников. Особенно впечатляющие виды открываются из дома на закате и рассвете.
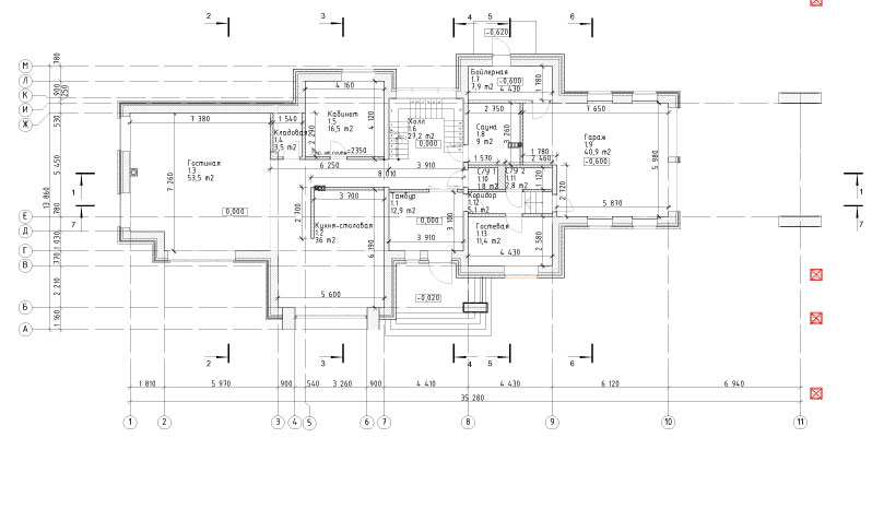
Внутреннее пространство дома организовано таким образом, что весь нижний этаж является общественной зоной, второй же является приватным. Такая планировка, типичная для европейских домов, безусловно, делает проживание и прием гостей более комфортными.
Архитекторы предусмотрели все для проживания и отдыха хозяев дома — это уютное и функциональное жилище для всей семьи.



