Дом в СП Стремиловское
Дом запроектирован для круглогодичного использования в СП Стремиловское, Чеховский район, Московская область, на ровном участке. Дом с бассейном двухэтажный с техническим этажом для оборудования бассейна, второй этаж бревенчатый с совмещенной односкатной утепленной кровлей.
Архитектурный образ дома горизонтальной направленности, в сочетании натуральных отделочных материалов каменного первого этажа и второго бревенчатого, из сухостойной сосны Kelo создают интересный, современный архитектурный образ. Кровля второго этажа с большими свесами кровли, открытой стропильной конструкцией, визуально и фактически занижают общий объем постройки. Расположение дома на участке, продиктовано ориентацией сторон света, зонированием и формой участка и расположением подъездных дорог.
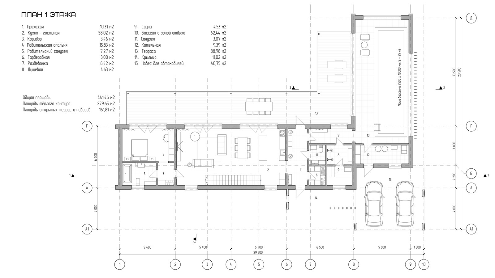
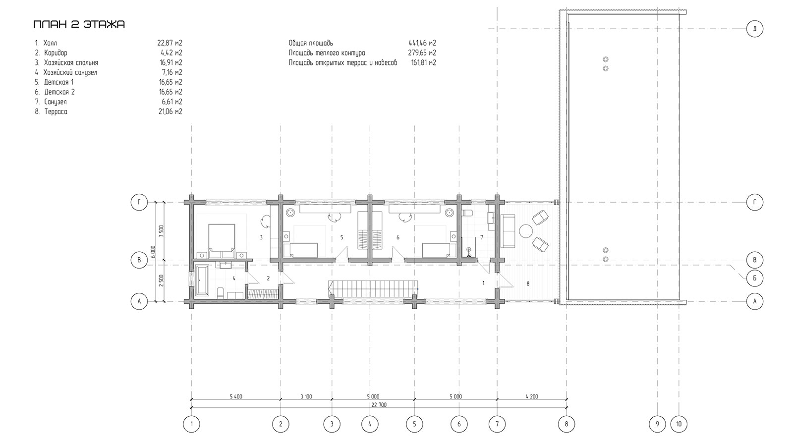
Планировка дома решена в два уровня и учитывает функциональное зонирование помещений на гостевые и приватные зоны. Дом максимально с ориентирован большим панорамным остеклением на лесной массив. В доме запроектировано: прихожая с открытой вешалкой для верхней одежды; гардеробная; гостевой санузел; кухня – гостиная с диванной группой, зоной просмотра ТВ, кухней с островом и столовой группой на 6 персон. Из кухни – гостиной предусмотрены панорамные окна с выходом на открытую террасу; родительская спальня, при которой расположена отдельная ванная комната; раздевалка; помывочная; сауна; бассейн 2,5х10 метров с зоной отдыха и выходом на террасу; котельная. Второй этаж приватный, на котором расположены 2 детские; санузел с душем; хозяйская спальня при которой расположена ванная комната с санузлом; и выход на крытый не остекленный балкон второго этажа с зоной отдыха. При доме расположен крытый навес на два машино – места и крыльцо с главным входом с деревянной отделкой.
Основные строительные материалы
Наружные стены первого этажа — газоблок 400 мм, в сочетании с каменной, металлической и деревянной отделкой.
Внутренние стены первого этажа каркасные.
Второй этаж дома бревенчатый, сухостойная сосна Kelo, диаметром 260 мм.
Перекрытия первого и второго этажа — стяжка по ж.б. монолитному перекрытию с эффективным утеплением из ЭППС и теплым полом.
Стропила — из деревянной строганой доски 50 x 200 мм.
Кровля — открытая деревянная стропильная конструкция с металлическим фальцевым покрытием.












