Дом в Ставропольском крае
Дом, объединяющий большую семью. Идея создания этого дома пришла заказчику в путешествии, в просторной гостиной арендованной виллы.
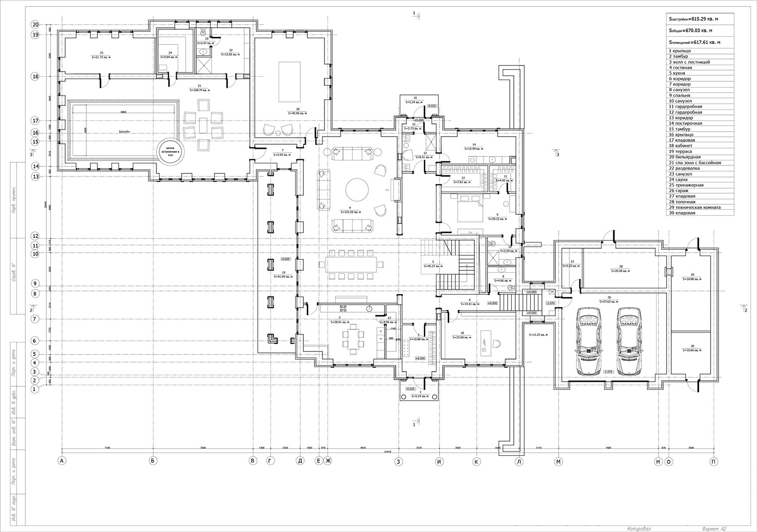
Большая гостиная с камином, в которой всем можно комфортно общаться — это главное помещение, вокруг которого строится вся концепция.
Витражные окна, из которых открываются красивые виды.
Множество приятных зон, в которых можно общаться с друзьями и многочисленной семьей.
Отзывы
Пока отзывов нет. Будьте первым.












