Дом в стиле эклектика
Фотограф Михаил Соколов
Дизайн и ремонт загородного дома 230 кв.м. в Московской области создан для семьи из пяти человек. В доме выполнена перепланировка с целью оптимизации жилого пространства. На первом этаже организована просторная единая зона кухни, столовой и гостиной, разделенная изящным арочным проёмом в деревянном обрамлении.
Итальянская кухня в роскошной отделке бронзовое золото с оригинальным декором по мотивам 60-х годов. Оригинальным декоративным приемом служат потолочные балки с встроенными элементами освещения. В эркере уютно расположилась обеденная группа.
Благодаря переносу кухни выделена спальня для бабушки. Встроенный шкаф с резными фасадами вносят нотки востока в интерьер спальни.
Отдельного внимания заслуживает оформление санузлов, в доме их несколько. Испанская керамическая плитка создает имитацию ручной работы, а ее декоры с яркими рельефными орнаментами создают атмосферу Средиземноморья.
В детском санузле привлекает своим ярким дизайном необычный смеситель в виде Пиноккио. Мастер-санузел выполнен в классическом стиле. На полу и стенах керамическая плитка в теплой бежевой гамме контрастирует с насыщенными коричневыми вставками и декорами из мозаичного панно.
На второй этаж ведёт деревянная шпонированная лестница с яркими акцентами — подступенки оформлены вставками из керамической плитки с орнаментом.
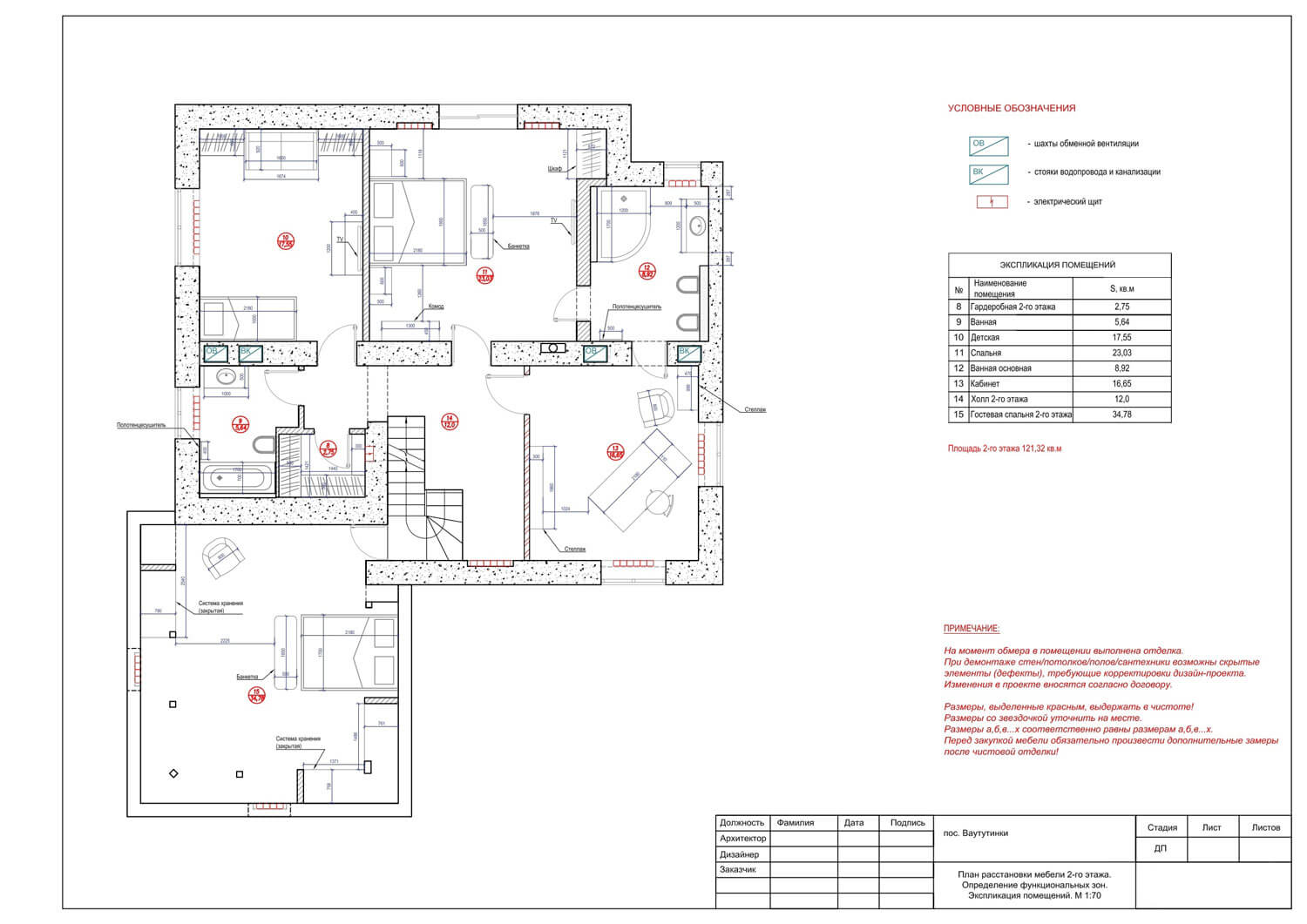
Весь второй этаж занимают приватные помещения: мастер-спальня, детская, ванные комнаты и рабочий кабинет.
Центральным элементом спальни стала шикарная кровать с прикроватными тумбами единым мягким изголовьем в обивке из натурального нубука. Примечательно, что из спальни устроено два выхода – в ванную комнату и в кабинет.
Кабинет выполнен в классическом стиле. Акцентом в этом помещении выступает кессонный деревянный потолок. Респектабельный письменный стол выполнен в отделке из шпона палисандра в глянцевом лаке.















