Дом в стиле Райта
Этот эффектный загородный дом построен на живописном участке в ближнем Подмосковье. По композиции в этом здании можно прочесть влияние мотивов Ф. Л. Райта, акцент сделан на горизонталь.
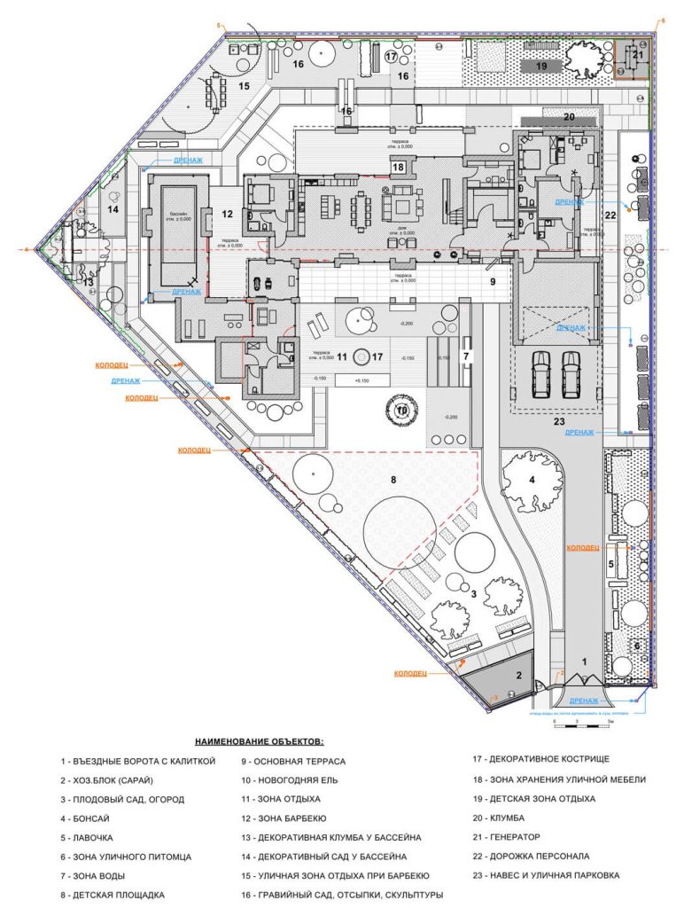
Дом, где продуманная архитектура сочетается с комфортом и функциональностью, построен на участке очень сложной формы, поэтому для того чтобы заказчик находясь на своей территории, чувствовал себя в такой очень камерной, спокойной обстановке, пришлось дом сдвинуть максимально вглубь от въезда.
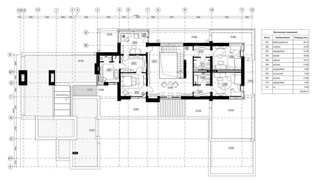
Если смотреть на главный фасад здания, то в центре находится основной двухэтажный объем — это все жилые помещения, справа техническая зона: это гараж и помещения для персонала, слева зона развлечения: там бассейн, традиционная русская баня и хамам.Из каждого помещения есть выходы либо на балкон, либо на террасу.
Этот загородный дом — идеальное сочетание эстетики, функциональности и единения с природой. Четкое зонирование, продуманные детали и натуральные материалы превращают его в место, где каждый день ощущается как отдых.























