Множественный выбор
Выбрать номинацию

Домильон

11

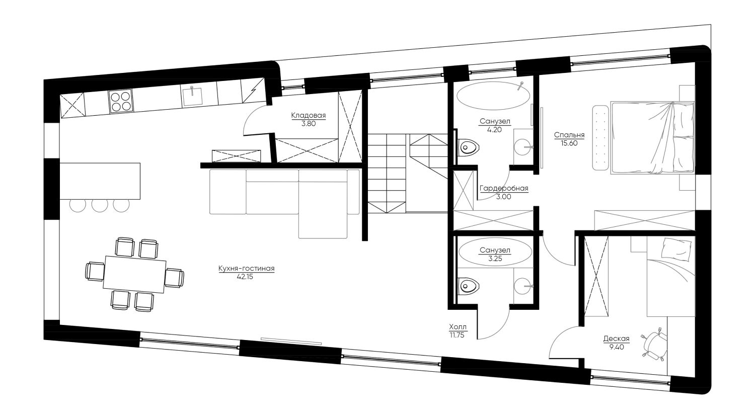
Компактная двухэтажная резиденция на участке со сложным рельефом. Дом площадью 94 м² интегрирован в уклон: первый уровень работает как подпорная конструкция, второй – парящий объем с деревянной отделкой и световой линией по периметру.

Задача проекта

Создать резиденцию на сложном участке с уклоном, где каждый метр подчинен сценариям жизни заказчика. Первый этаж — техническая и рекреационная зона со спа и хаммамом для расслабления. Второй уровень — приватное пространство с двумя мастер-спальнями и панорамными видами.

Описание

Резиденция «Домильон» была рождена из тонкого диалога с ландшафтом: сложный уклон участка превратился в главное композиционное преимущество.

Первый уровень дома работает как подпорный элемент, органично интегрируя постройку в рельеф и создавая надежный базис для парящего верхнего объема. Второй этаж акцентирован теплыми деревянными панелями и деликатной световой линией по периметру консоли. Визуальный контраст между монументальным основанием и легким верхним объемом подчеркивает уникальный характер резиденции.

Внутренняя логика построена на выверенном зонировании, где каждый из 94 м² подчинен продуманным сценариям жизни. Первый этаж берет на себя техническую и рекреационную нагрузку, формируя переход между внешним пространством и приватной атмосферой дома.

За функциональной прихожей, гардеробной и котельной скрывается настоящая жемчужина — спа-зона с хаммамом, пространство для ежедневных ритуалов восстановления, которое позволяет мгновенно переключиться из ритма большого города в режим глубокой релаксации.

Второй уровень предназначен для отдыха и семейного общения. В нем нет места бытовому шуму и суете — только две тихие мастер-спальни и атмосфера абсолютного покоя, усиленная панорамным видом на окружающий пейзаж.

«Домильон» создан для заказчика, который ценит архитектуру, отражающую сценарии его жизни, и понимает, что истинная роскошь кроется в тишине, лаконичности и безупречной точности планировочных решений.

Выставка конкурсных проектов
ВЫСТАВКА КРАСИВЫЕ ДОМА - 2026

ФОТОГАЛЕРЕЯ
ЭКСПОЗИЦИИ
КОНКУРСНЫХ
ПРОЕКТОВ

КАК ЭТО БЫЛО
Выставка конкурсных проектов проходит дважды в год (Весна | Осень)

Отзывы

Можно использовать **жирный**, *курсив*, [ссылку](https://example.com), списки через - или 1.
Мальцева

Небольшой дом, площадью 94кв.м. Задачу максимально вписаться в склон объем здания успешно решил. Очень симпатичные планы. Хотелось бы и фасады решить более занимательно.

Можно использовать **жирный**, *курсив*, [ссылку](https://example.com), списки через - или 1.