Двухэтажный дом с террасой
Двухэтажный дом в стиле шале — это потрескивающий в камине огонь, добротный уют, совмещающий динамичное тепло дерева с надежной неподвижностью камня. Роскошный экстерьер здания невероятно привлекателен благодаря удачным архитектурным находкам, которые сливаются в общий гармоничный ансамбль.
Открытая обширная терраса также способствует лучшему освещению дома в течение дня, помогает удобно и комфортно организовать пространство около дома.
Большие удлиненные окна гарантируют прекрасное естественное освещение комнат и дарят ощущение единства с природой. На первом этаже сформирована зона отдыха, в которую входят просторная гостиная с камином. Устроенный у внутренней стены гостиной камин наполняет помещение теплом и уютом. Также на первом уровне расположена кухня и большая прихожая, в которой отведено место под вместительный шкаф.
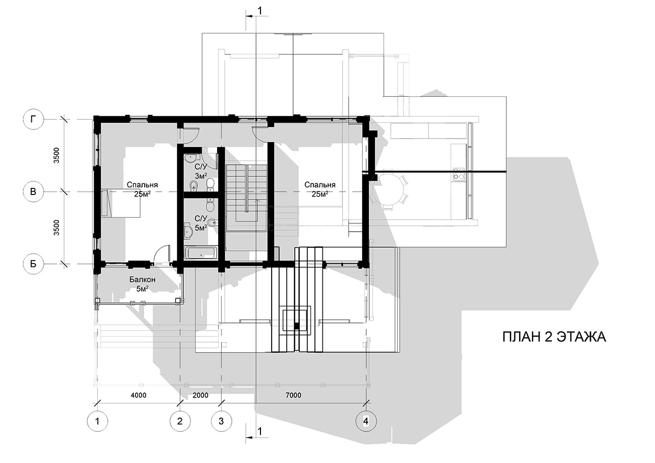
Второй этаж полностью отдан под ночную зону. Здесь располагаются две просторные спальни (в одной из них предусмотрено гардеробное помещение, в другой есть балкон), а также большая ванная. На террасе можно устроить летнюю зону отдыха (выходы спроектированы из большей спальни). Санузлы, расположенные один над другим, позволяют быстрее и легче провести в доме водопровод и канализацию.
В этом доме чувствуется индивидуальность, а кроме того, в нем продумана каждая деталь для удобной жизни.










