Эдинбург
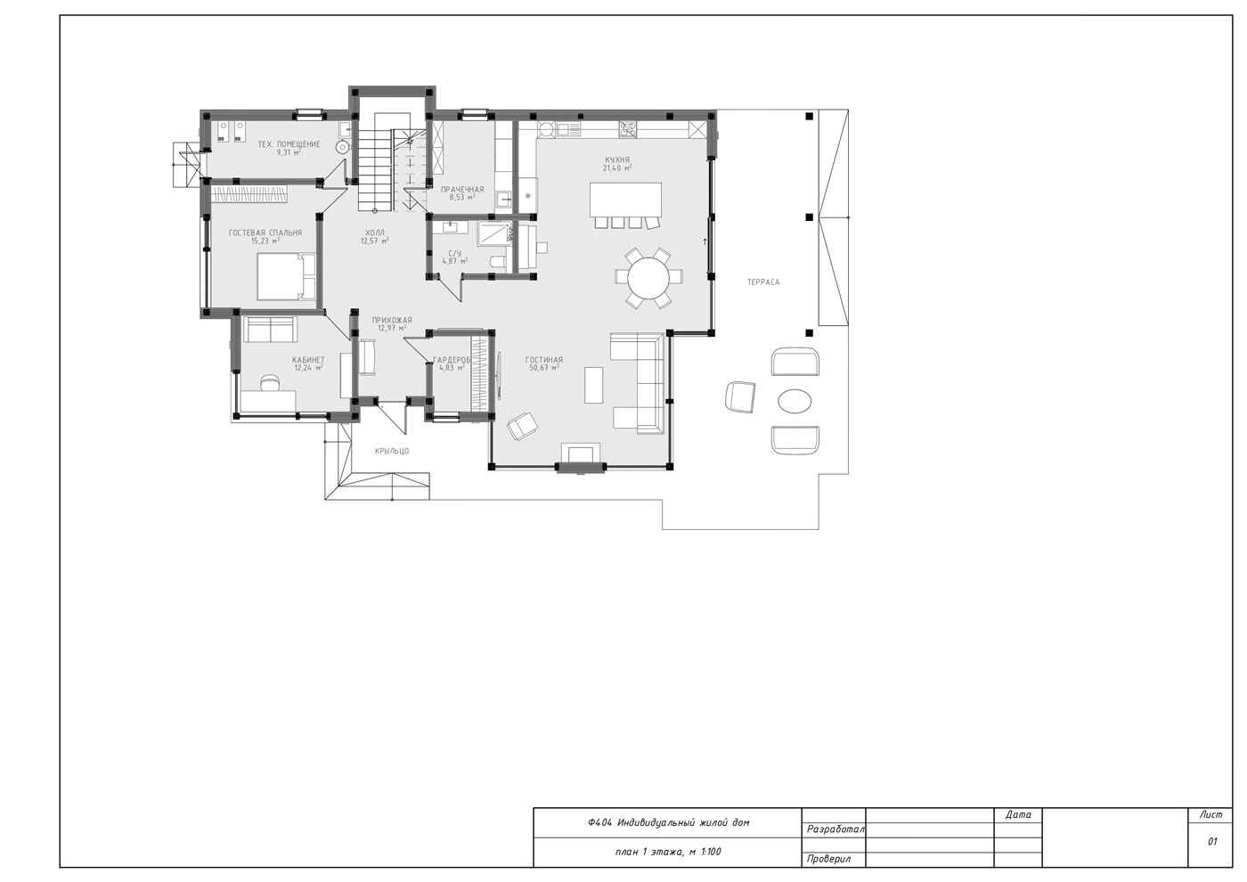
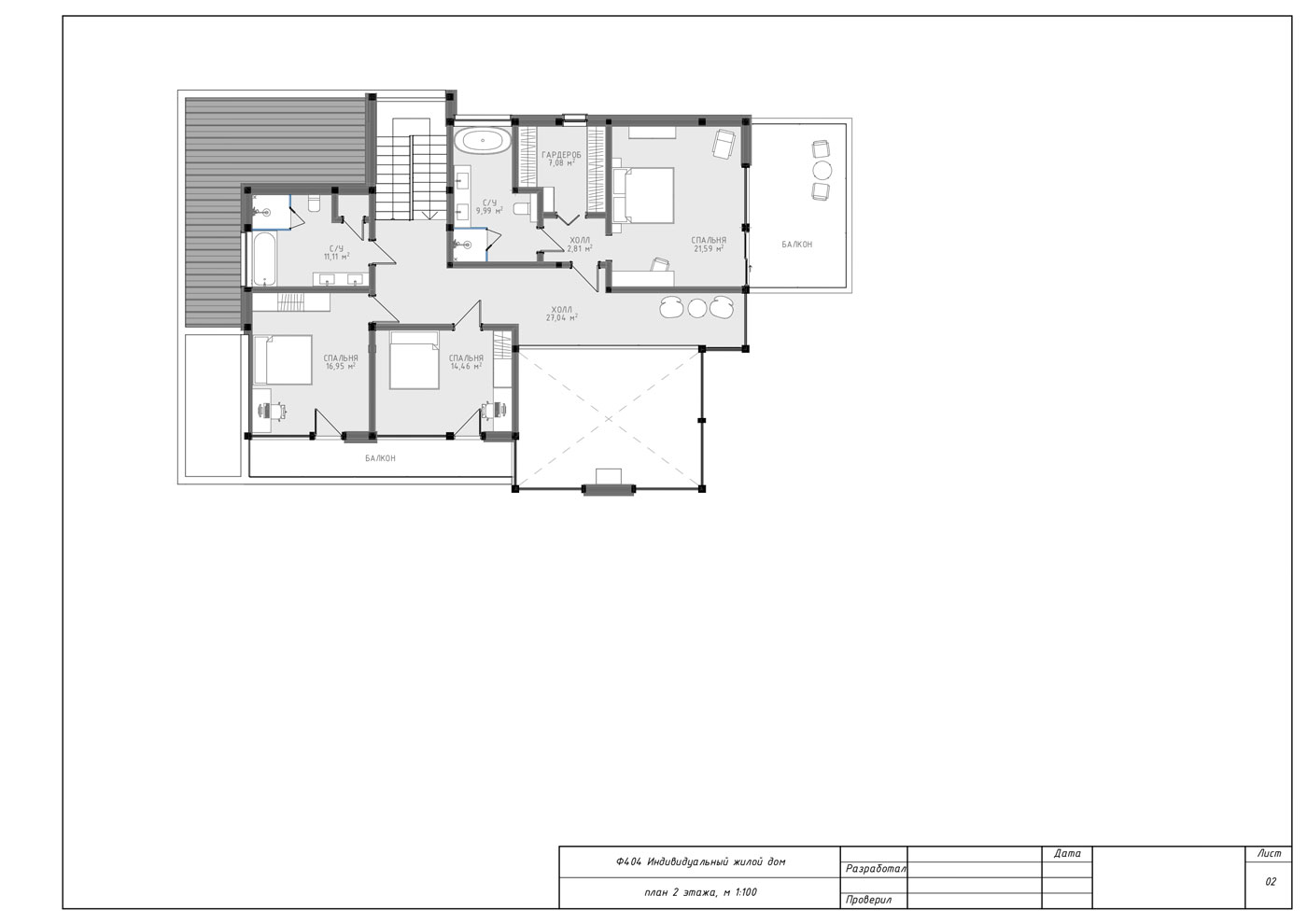
Дом “Эдинбург” олицетворение современной архитектуры – четкие геометричные формы чередуются с плавными линиями, что создает, соответствующий духу времени вид.
Интерьер дома пронизан естественным светом за счет панорамного остекления. Окна в пол зрительно увеличивают площадь, объединяя внутреннее пространство с окружающей природой.
Отзывы
Пока отзывов нет. Будьте первым.










