Эклектичный дизайн
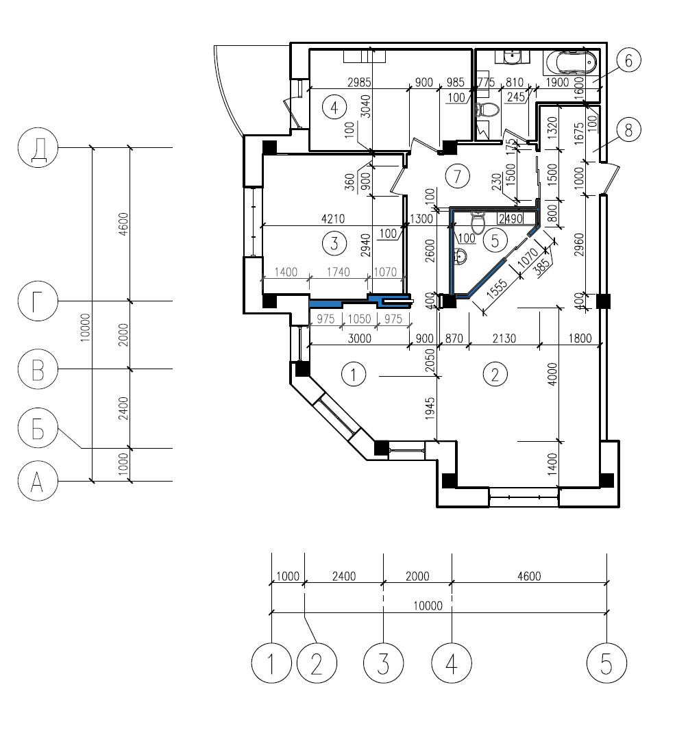
Трехкомнатная квартира общей площадью 112 м² предназначена для постоянного проживания семьи из 3-х человек: 2-х супругов и их дочери. Дизайн-проект выполнен в эклектическом стиле.
Личная зона включает спальню родителей, детскую и ванную комнату. Они отделены от общей зоны коридором Г-образной формы, который также соединяет общую комнату и прихожую.
Целостность и гармония всех помещений квартиры достигнуты за счет использования единой колористической палитры, однако каждая комната сохраняет свою индивидуальность благодаря акцентам различных оттенков. Спальня, задуманная в мягких монохромных тонах, располагает к приятному отдыху.
Эклектика — это искусственное соединение разнородных, непохожих друг на друга стилей и идей, используемых в интерьере квартир. Данный стиль предполагает сочетание композиций и предметов, относящихся к разным временам и имеющих разное происхождение. Цветовое решение не имеет резких ограничений, используются как открытые, так и сложные цвета, темные и светлые оттенки. Эклектика представляет собой гармоничный контраст, сочетание на первый взгляд несочетаемого. Основная задача дизайнера состоит в том, чтобы найти связи, которые не превратят этот стиль в хаос.



