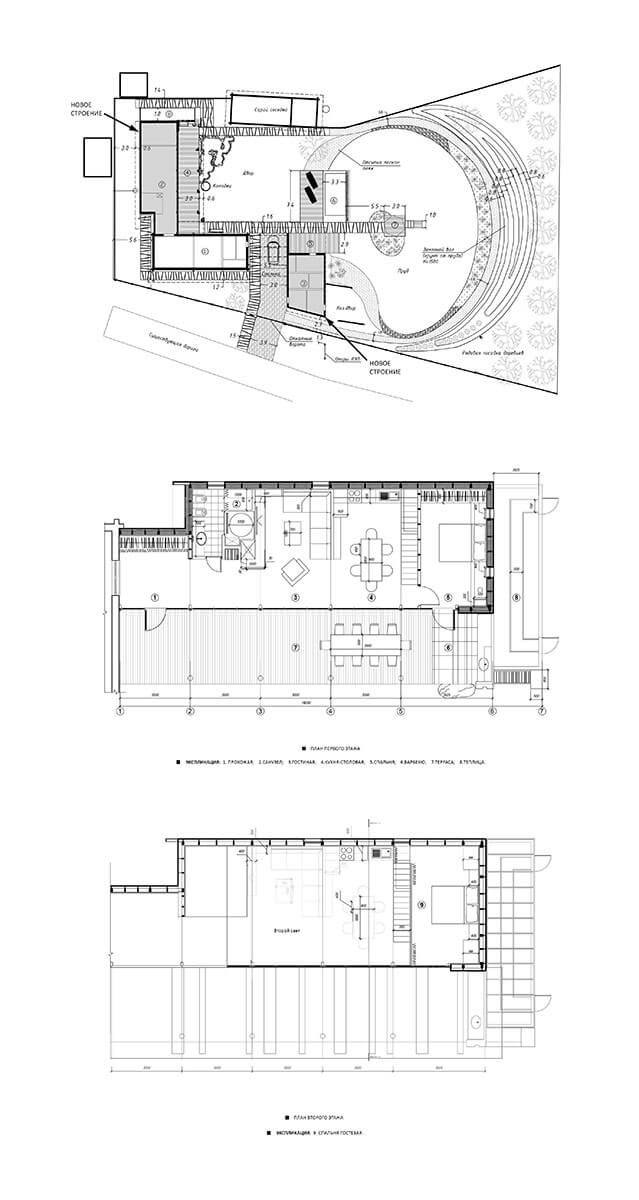
Этнопатио
Главной идеей проекта является бережное отношение к существующим историческим постройкам и включение их в новую структуру современной семьи, чтящей традиции и преемственность поколений.
Расширение старого дома решено за счет новой пристройки с этническими мотивами. Бывший хозяйственный двор используется как уютное патио с современным бассейном и декоративным прудом.
Новая пристройка обращена витражами во двор, изолированный от внешней суеты.
Конструкция дома — деревянный каркас, теплоизолированный в соответствии с нормативами.
Кровля — фальцевый металл.
Внутренняя отделка—– гипсокартон, покраска.
Отопление — дровяное, камин с водяной рубашкой, накопитель теплоносителя. Источник — теплый пол.
Фасады — вертикальная деревянная рейка.
Отзывы
Пока отзывов нет. Будьте первым.












