Family SPA загородный дом для отдыха с родными и друзьями
Концепция: загородный дом для отдыха с родными и друзьями.
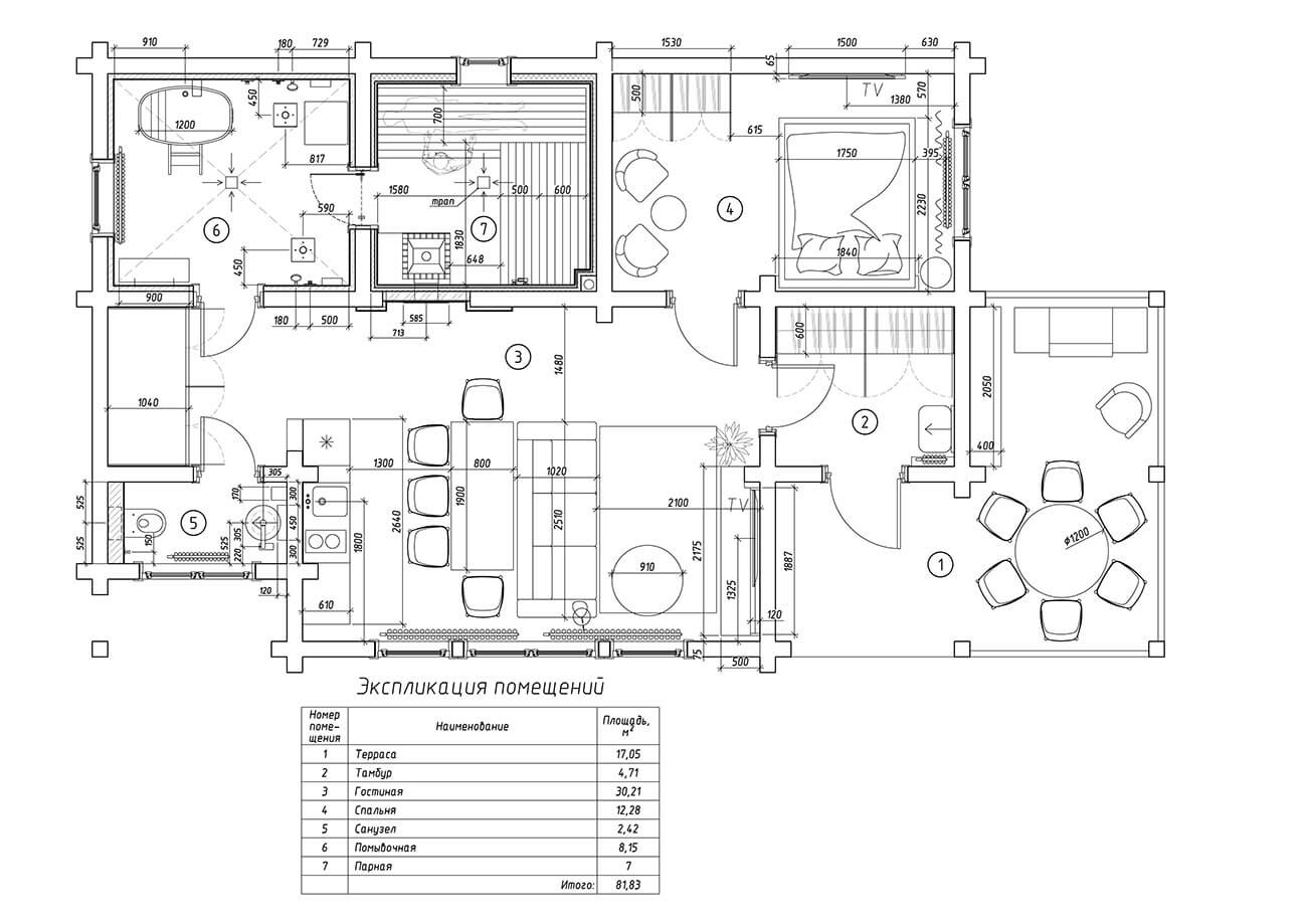
Одноэтажный дом с закрытой и открытой террасами, где в теплое время года можно установить шезлонги возведен из клееного бруса. Основное предназначение дома – отдых с семьей и друзьями, поэтому автору проекта предстояло обустроить комфортную гостиную с большим обеденным столом, уютную спальню, парную и зону с купелью.
Так как для постоянного проживания дом не предназначен и изначально его планировалось сделать небольшим, то еще на стадии проектирования отказались от коридоров. Центральным стало светлое открытое пространство гостиной-кухни, откуда есть выходы в спальню, спа-зону и на крытую террасу.
Что касается наполнения интерьера, то заказчики дали полный карт-бланш автору, ведь это не первая их совместная работа Интерьер дома оригинален и неординарен за счет ярких цветовых решений скатного потолка, авторских люстр сложной формы и инновационных материалов мебели.
Цветовая гамма интерьера в целом спокойная и состоит из природных оттенков дерева, глины, угля и камня.
В таком доме можно забыть о внешнем мире и полностью посвятить время своей семье и друзьям.
Проект был пробным шаром для заказчиков, которые хотели определиться, стоит ли им строит основной дом на участке. И после того, как они оценили преимущества загородной жизни, такое решение было принято.
отделочные материалы и сантехника: Динтера, Евросантехника
корпусная мебель: SetusProduction
мягкая мебель: Вернисаж галерея мебели
освещение: Центрсвет
декор: Dom Design
текстиль: Золотая Вуаль
двери: Дверцог, Стальной портье.













