ГАРМОНИЯ АРТИШОКА
Фото: Михаил Боровских
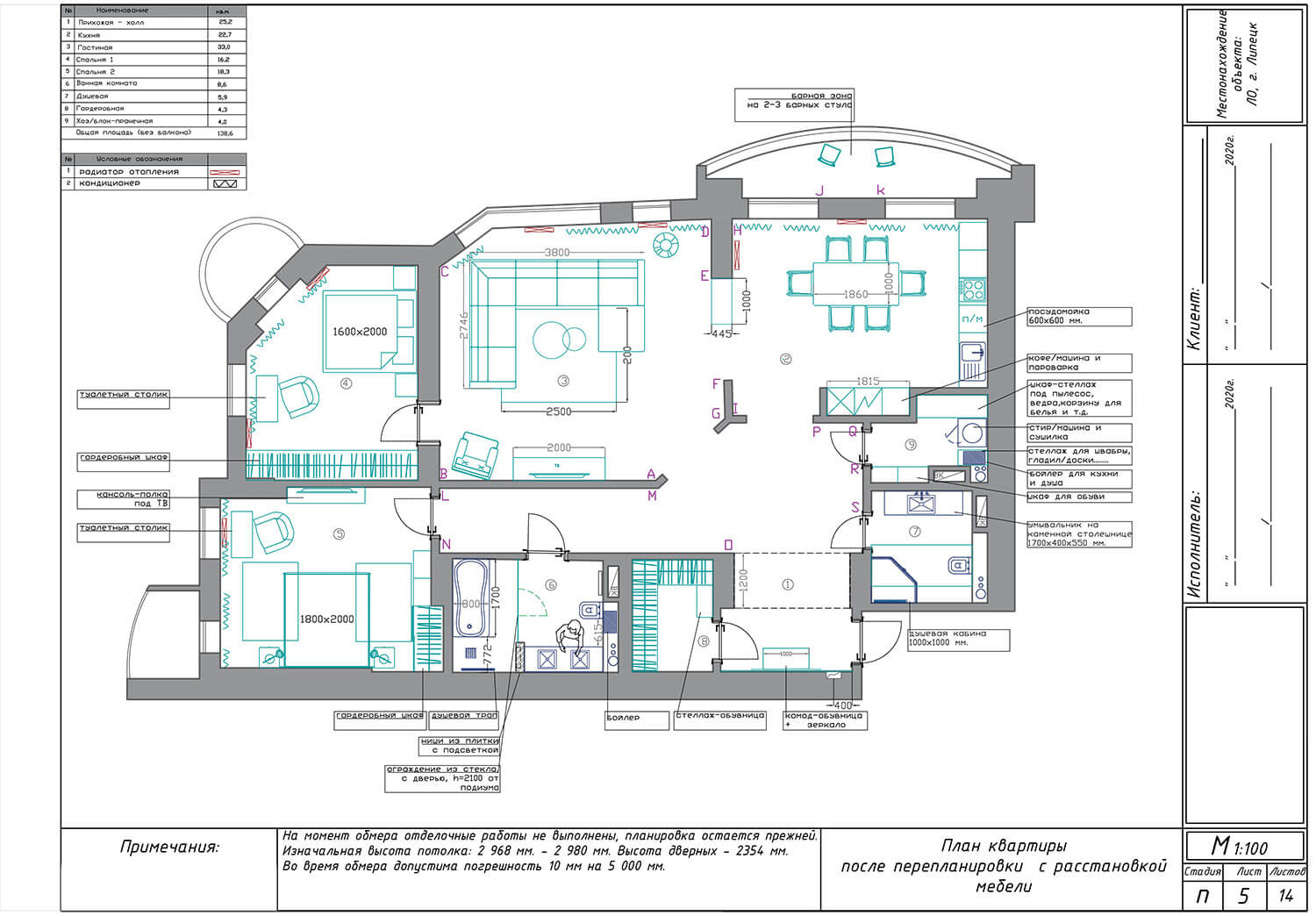
Квартира общей площадью 139 кв.м, высота потолка — 3 м.
Из просторной прихожей с большим зеркалом можно попасть как в гостиную, так и на кухню, из кухни в гостиную. Такое объединение этих зон дало возможность свободного передвижения по квартире и принятию большого количества гостей. Территория кухни отделяется от гостиной высоким металлическим стеллажом со множеством аксессуаров.
Пожеланием заказчика было не использовать плитку в рабочей зоне. Поэтому на стену за кухней положили декоративное покрытие под бетон с финишным двухкомпонентным лаком Vernis bi-composant. Он защищает стену от воды, жира и позволяет использовать моющие средства. Эта отделка стены гармонично смотрится с потолком, часть которого является объединяющим фактором всех трех зон и представляет собой естественное монолитное перекрытие с легкой тонировкой в винный красный оттенок.
И хотя кардинальных изменений при перепланировке не было, автор внес небольшое изменение без переноса стен. За счет непонятной конфигурации кухни и ее большой площади был создан хозблок для расположения стиральной и сушильной машин, пылесоса, болейра и т.д.
Спальня хозяев удалена от центральной части квартиры. Система хранения вещей в ней сливается со стенами благодаря единому цвету и не выглядит громоздко. Присутствие в ней нескольких режимов освещения может отвечать разным настроениям.
Комната подростка оказалась сложной формы и небольшой площади, с окном и балконом, что зрительно ее уменьшало. Поэтому была использована фотопечать с эффектом увеличения пространства и смещения естественного угла помещения в сторону. Это дало иллюзию большой просторной спальни.
В данной квартире два санузла. Один — это ванная комната, максимально удобная, что позволяет использовать ее двум членам семьи одновременно. Второй — душевая комната, не менее просторная и комфортная.














