Глиняный дом
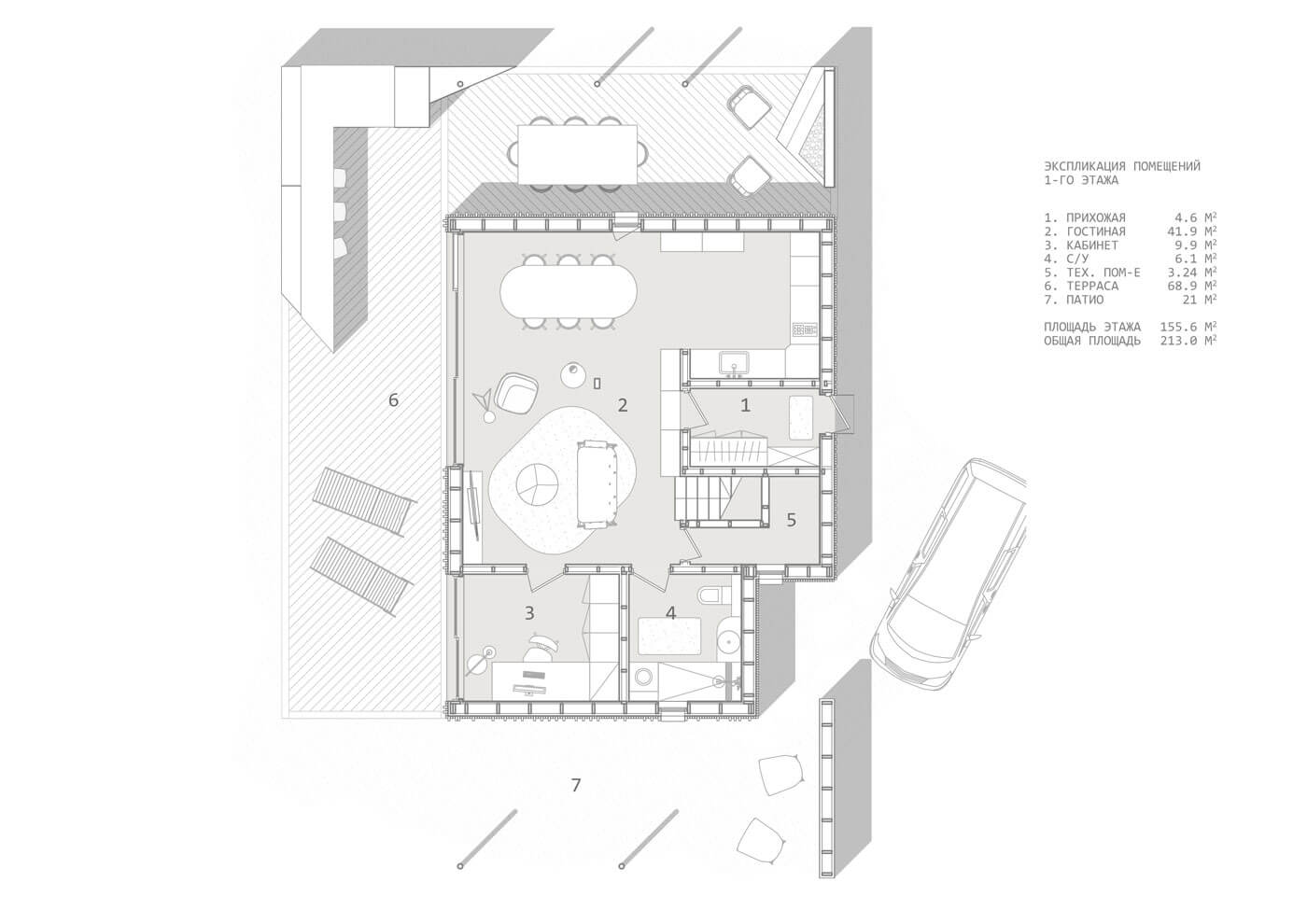
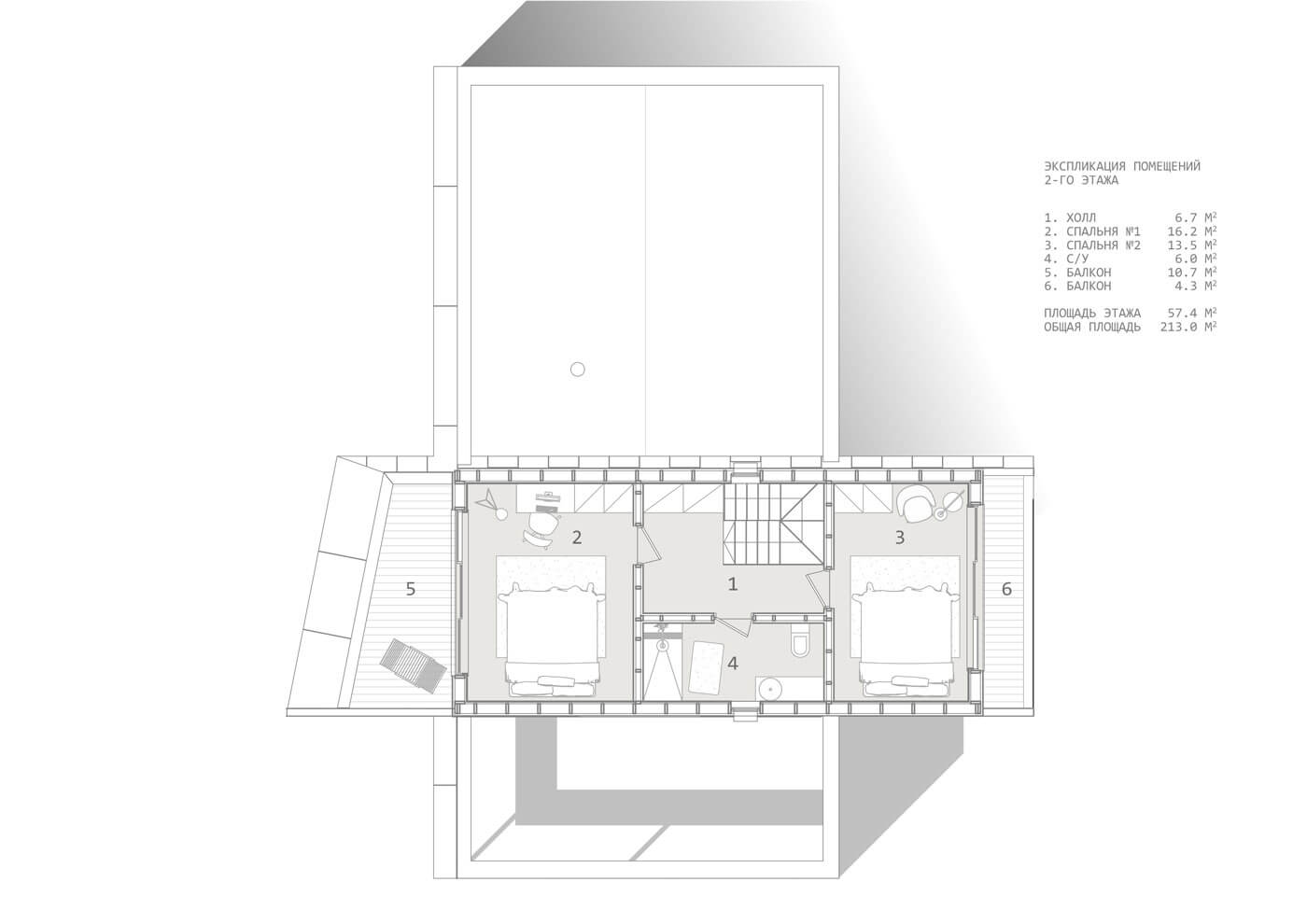
Дом, который бы «пылал» на южном солнце посреди окружающей застройки одного из посёлков Краснодарского края, создавался для небольшой семьи художника-гончара и дизайнера. Основой стала его геометрическая простота планировочной композиции, которая состоит из двух повернутых прямоугольников, объединенных лестничным холлом. На первом этаже расположилась просторная гостиная, гостевой санузел и кабинет. На втором этаже находятся две спальни, одна из которых хозяйская и ещё один санузел. При этом экстерьер в противовес был спланирован так, чтобы в зависимости от точки обзора он всегда увлекал взгляд своей динамикой за счёт деконструкции геометрии его элементов. И наиболее подходящим строительным решением для реализации задуманных идей стал деревянный каркас.
Наружная отделка дома была выбрана исходя из скорости монтажа, её долговечности, а также эстетической цели «пылать» на солнце как терракота. И всем этим критериям полностью соответствовала бакелизированная фанера, которая была использована практически повсеместно в экстерьере, начиная от отделки стен и заканчивая подшивой свесов балконов и крыши.
На участке был сохранен облепиховый сад, на который выходит терраса с декоративным камином под закрытой её частью и барная стойка под открытой. Кроме того, с глухой стороны дома был организован тихий патио с сохранившимися крупными деревьями, дающими прохладную тень.









