Множественный выбор
Выбрать номинацию

Гостевой дом с баней

Фото: Николай Константинов

Дом, уютно расположенный около живописного пруда в окружении заповедных мест Тверской области, создавался как гостевой дом с баней на территории родовой усадьбы для проведения семейных выходных за городом.

Дом построен из натурного бревна крупного диаметра и увенчан крышей сложной конструкции. Входные порталы, двери, оконные обрамления — ручная работа, кропотливо выполненная тверскими ремесленниками в традициях русского зодчества.

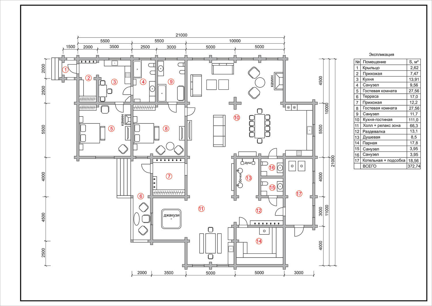
Планировка выполнена с учетом функционального зонирования помещений, основу которой составляет центральный конструктивный столб в виде древа жизни, основа основ семьи, мироздания. В центральном зале располагается просторная гостиная с каминным уголком. Обеденная зона приглашает насладиться прекрасным ужином в кругу самых близких людей. Предусмотрена также гостевая комната с собственным санузлом. Здесь также размещен банный блок с парной, душевой, джакузи и зоной отдыха.

Общая площадь строения составляет 372,8 кв.м, включая площадь смежных гостевых апартаментов с автономным входом — 58,5 кв.м, там расположена спальня с кухней и ванной комнатой.

Как и положено, в русских домах испокон веков дом охраняют резные и расписные птица Сирин, львы и волки, удивительные сказочные персонажи. Витиеватые орнаменты — обереги органично перетекают от одного интерьерного элемента к другому по всему внутреннему убранству.

Удивлять своих гостей рукоделием современных мастеров — любимое занятие хозяина этого терема. Кропотливо, терпеливо искал он тверских ремесленников, которые увлеклись его идеями. Погрузившись в тему русской сказки и символизма, проектировали на основе известных шедевров интерьерные элементы, органично вплетая их в заданное пространство. Входные порталы, двери, оконные обрамления, межкомнатные и потолочные украшения выполнены по мотивам архитектуры русского модерна начала ХХ века, навеяны иллюстрациями к сказкам И. Билибина и В. Васнецова.

Использование только натуральных материалов в дизайне помещений — обязательное задание мастерам. Мебель и светильники, мелкие элементы декора для всех помещений подобраны хозяином и созвучны общей концепции дизайна.

Дом, переступив порог которого вы погружаетесь в завораживающую русскую сказку, где вас встречают витражные кот Баюн и Русалка, витиеватое резное зеркало….. Словно хозяин пригласил вас в детство, на встречу с персонажами знакомых русских сказок…

Выставка конкурсных проектов
ВЫСТАВКА КРАСИВЫЕ ДОМА - 2026

ФОТОГАЛЕРЕЯ
ЭКСПОЗИЦИИ
КОНКУРСНЫХ
ПРОЕКТОВ

КАК ЭТО БЫЛО
Выставка конкурсных проектов проходит дважды в год (Весна | Осень)

Отзывы

Можно использовать **жирный**, *курсив*, [ссылку](https://example.com), списки через - или 1.
Пока отзывов нет. Будьте первым.