Гостевой дом в Сертолово-2
Гостевой дом проектировался для зрелой семейной пары, часто принимающей гостей в своем загородном доме. Хозяин очень любит готовить, поэтому была обустроена зона барбекю с возможностью готовить еду на огне в любое время года.
Гостевой дом связан с главным зданием на участке общей стилистической концепцией. Компактное и сомасштабное размеру приусадебной территории сооружение внутри раскрывается объемом с высоким потолком. Поскольку подшивка потолка сделана по стропилам кровли, в интерьер вынесены конструктивные балки, которые не декорированы, — таким образом архитектура включена в интерьер. Благодаря большой площади остекления человек, сидящий за столом, как будто находится в окружении сада.
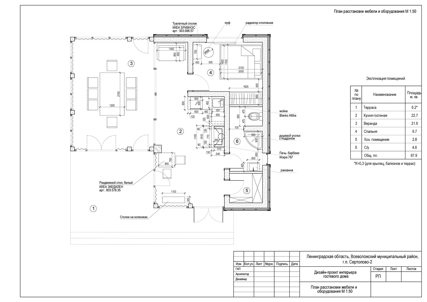
Основная идея при постройке гостевого дома — создать уютное пространство вокруг зоны барбекю, чтобы проводить выходные в кругу друзей в максимальной близости к природе в любое время года, а также отделить шумные компании от главного здания. Поэтому обустроили большое помещение для встречи гостей с зоной столовой, террасу, спальню, санузел с душевой и кладовую.
Интерьер выдержан в современном стиле, но с ярко выраженным загородным колоритом, который подчеркивают люстры, бра и другие светильники в разнообразных концептуальных решениях. Ретропроводка отсылает к деревенскому стилю. Большое количество разных сценариев искусственного освещения используется как декораторский прием.
Цветовая гамма спокойная с яркими акцентами, что соответствует природным ландшафтам в окрестностях Петербурга в разные сезоны. Сад – это часть интерьера, поэтому цветовое решение интерьера сочетается с природными оттенками. Например, терракотовый кирпич, благородно-янтарные балки, темно-коричневые рамы остекления — прекрасный фон для зеленого массива участка, который благодаря панорамным окнам стал частью обстановки.
Работу над этим объектом можно назвать реконструкцией. Гостевой дом появился на фундаменте, который предназначался для деревянной бани. Таким образом, подземную часть пришлось изменить. Поскольку поменялось функциональное назначение здания, изменились его планировка и внешний вид.
Большой удачей стала возможность вести объект полностью. Специалисты нашей студии создавали эскизный проект, архитектурно-строительный раздел, дизайн-проект интерьера, сопровождали все строительные и отделочные этапы, также занимались комплектацией и декорированием, например, посуда и столовые приборы, как и текстиль, подбирались специально для этого объекта. Все работы, включая проектирование, были проведены в течение пяти месяцев.
Фотограф: Иван Сорокин















