GP 2301
Фото: Влад Феоктистов
Комплекс находится в Сочи, в районе Соболевка. Это 12 апартаментов с благоустроенной территорией и собственным бассейном. Бассейн в этом комплексе — основное место притяжения. Одна из боковых стенок бассейна прозрачная. Проходя мимо, можно наблюдать плавающих в бассейне людей. Через это стекло получаются отличные фотки, и часто фотографы устраивают фотосессии на территории комплекса. Рядом с бассейном обустроены две раздевалки, открытый душ и санузел. Есть место для занятия йогой.
Все сделано в одном стиле. Архитектура комплекса выполнена в современной, минималистической стилистике.
Здание состоит из двух основных элементов: большого белого объема и чуть поменьше черного. Черный элемент облицован черным мрамором. Белый покрыт камешковой штукатуркой. Они врезаются друг в друга, как большая ледяная глыба в черную мраморную скалу.
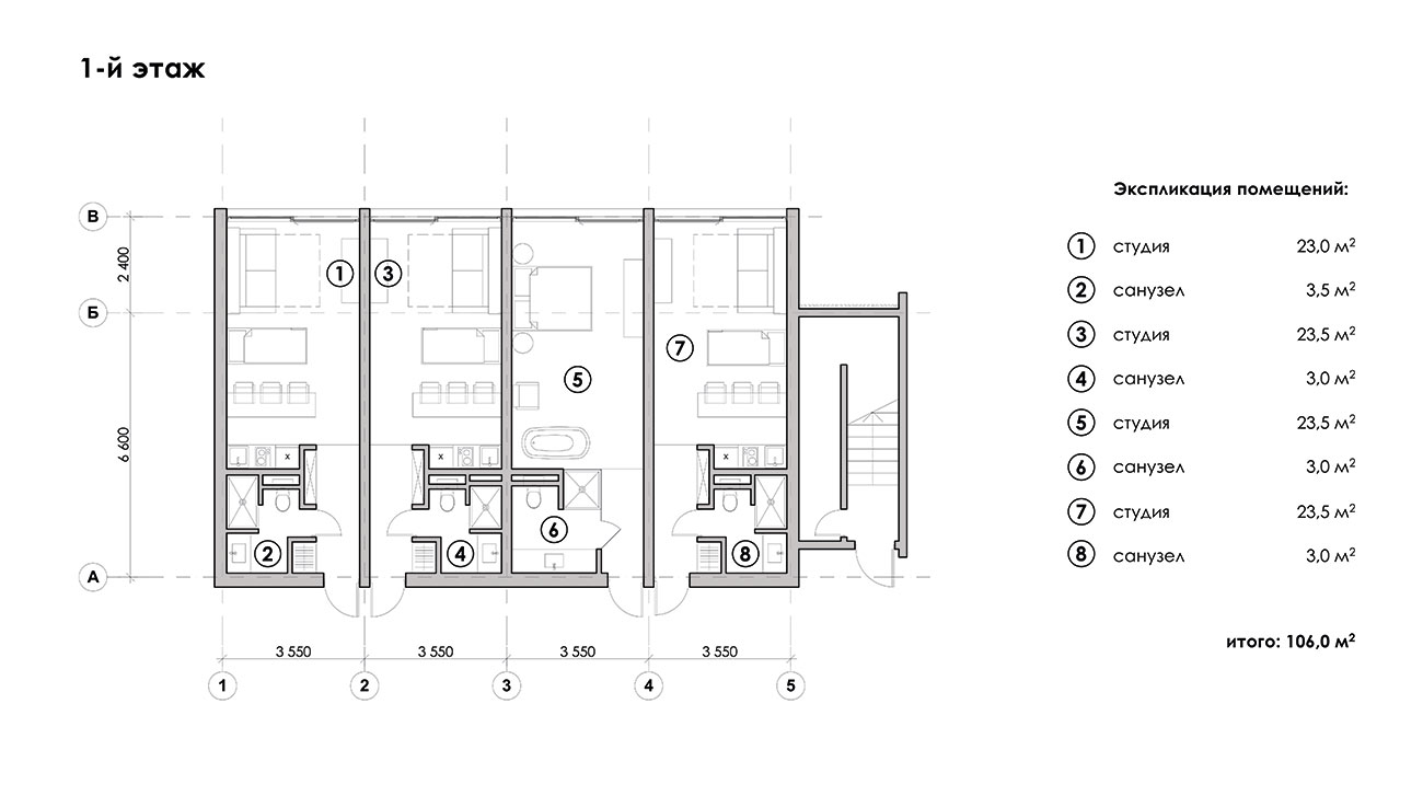
Также использована отделка деревом. Вся территория вокруг бассейна покрыта гранитом серого цвета. Апартаменты небольшие, 25-30 кв.м. Такой формат очень популярен в Сочи, так как их покупают иногородние не для постоянного проживания, а для проведения выходных или на время отпуска. Некоторые предпочитаю приезжать зимовать в Сочи.
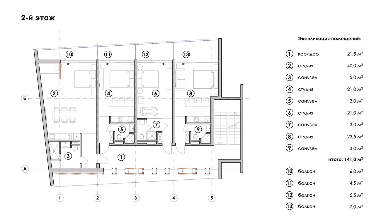
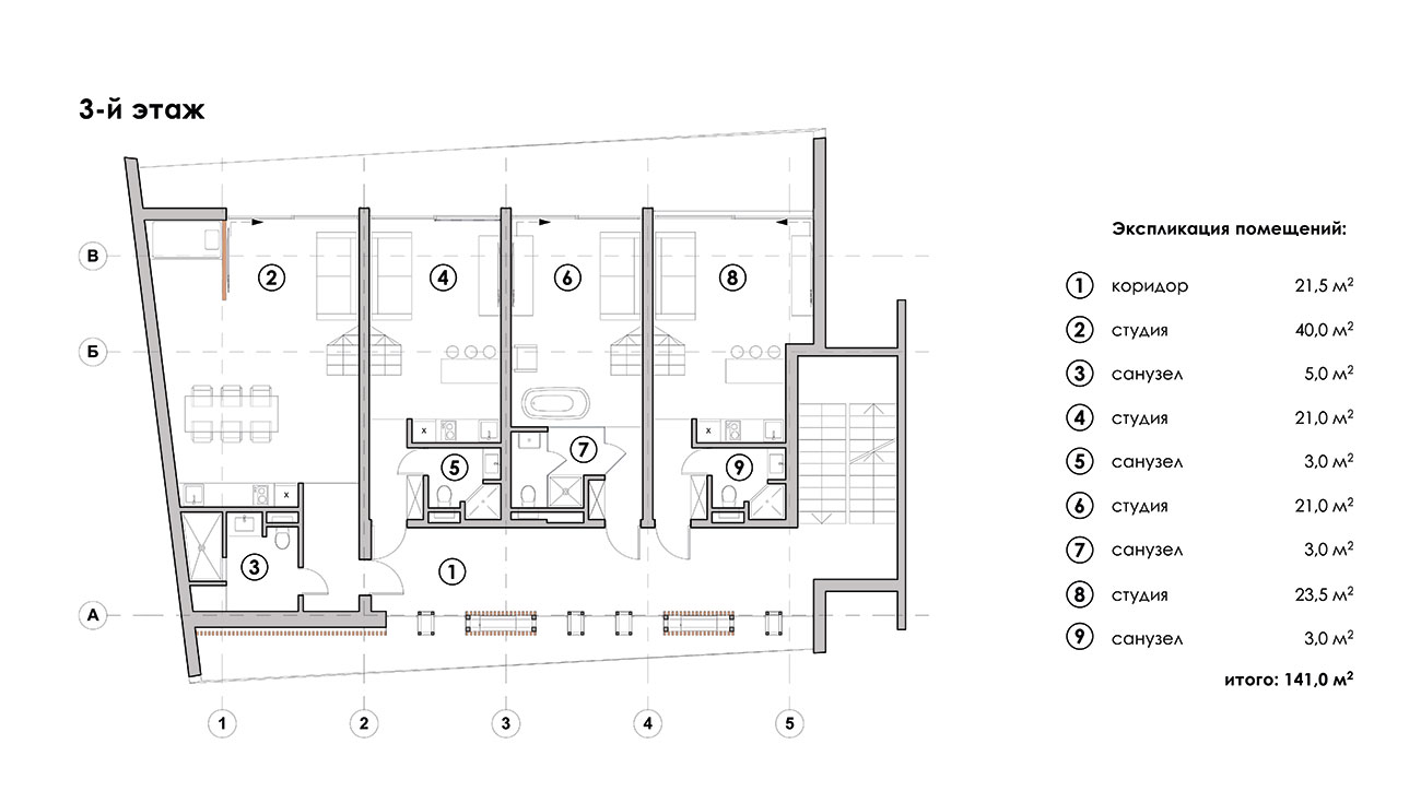
Из-за своеобразной формы здания апартаменты 3-го этажа получились намного выше, чем 1-го и 2-го. и это позволило сделать там антресольный этаж со спальным местом.
Дом сдан с чистовой отделкой. Интерьеры апартаментов минималистские и очень сдержанные.
Комплекс получился очень стильным и притягательным. Жители соседних домов приходят фотографироваться на его фоне.















