Множественный выбор
Выбрать номинацию

IDEA FOREST

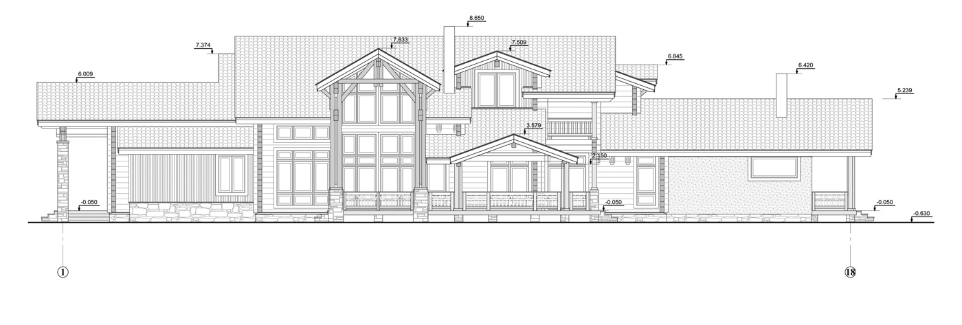
Загородный дом из клееного бруса для постоянного проживания расположен вблизи леса. Нужно было создать органичную архитектуру в сочетании с легкими воздушными конструкциями на фоне массива стен из натуральных материалов: камня и дерева. Дом дополняет окружающую среду и одновременно является частью ее. Цветовое решение фасадов выбрано в природных оттенках данной местности, а фоном фасадов дома является контрастная густая зелень близлежащего леса.

Большое остекление передает атмосферу свободы, где отсутствуют границы между внутренним пространством и окружающей средой, что позволяет насладиться видами живописного леса и ландшафта.

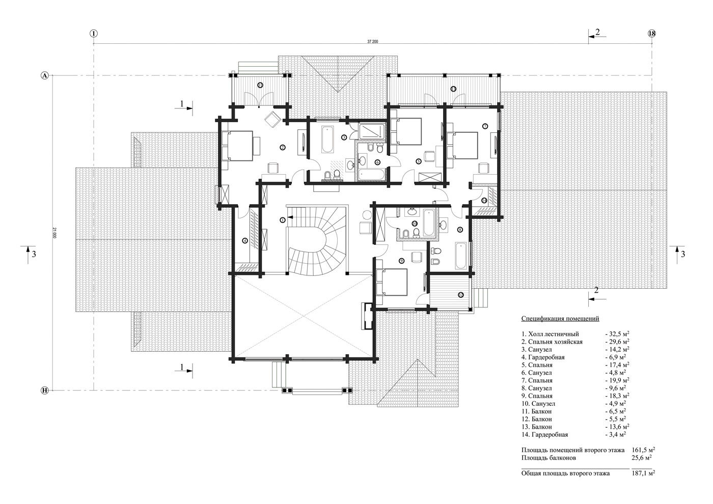
Функциональность и эргономика — девиз для планировочного решения. На первом уровне сконцентрированы общие пространства холла с парадной лестницей с видом на входную зону, столовой с выходом на террасу и гостиной с камином, которые дополняются второстепенными помещениями: кладовыми, гардеробными, санузлами.

Особое место уделено зоне бассейна с хаммамом. Высокое остекление вдоль чаши бассейна передает атмосферу единения с природой и великолепный вид на лес. Второй этаж отдан полностью под приватную зону спален с балконами, гардеробные и санузлы. Общая площадь дома — 692,1 м².

Выставка конкурсных проектов
ВЫСТАВКА КРАСИВЫЕ ДОМА - 2026

ФОТОГАЛЕРЕЯ
ЭКСПОЗИЦИИ
КОНКУРСНЫХ
ПРОЕКТОВ

КАК ЭТО БЫЛО
Выставка конкурсных проектов проходит дважды в год (Весна | Осень)

Отзывы

Можно использовать **жирный**, *курсив*, [ссылку](https://example.com), списки через - или 1.
Пока отзывов нет. Будьте первым.