Множественный выбор
Выбрать номинацию

Идиллия с природой

Идиллия с природой — это идеализированные представления о совершенстве, гармонии, полноте жизни простых, «естественных» людей, их непосредственных связях с природой, утверждаемых в качестве абсолютной ценности. В проекте загородного дома мы стремились именно к воплощению идиллии с природой.

Так в чем же заключается идиллия с природой в данном проекте?

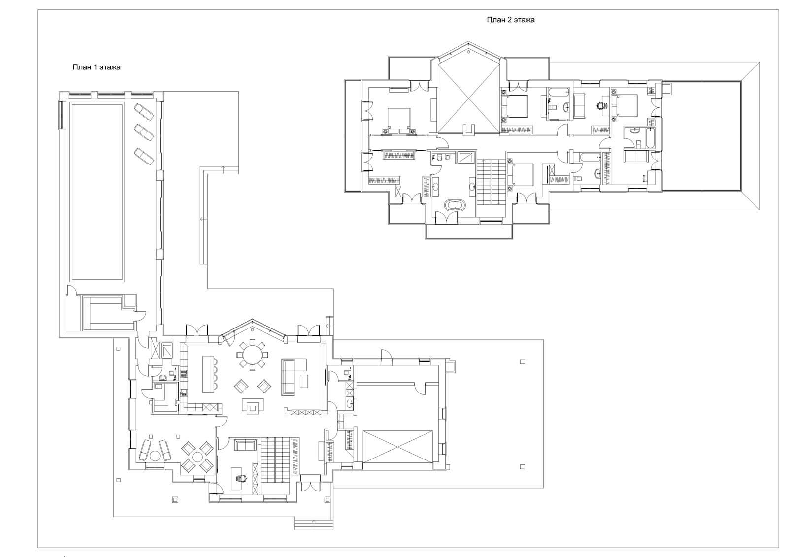
1. Местоположение территории участка граничит с лесным массивом, а на самом участке расположены прекрасные 15 и 20-метровые сосны, которые мы сохранили и вписали в экстерьер.

2. Размещение строений на участке представляет собой Г-образную объёмную композицию из жилого дома и бассейна, организующую внутренний двор с нетронутой природой сохраненных деревьев.

3. Материалы дома представляют собой сочетание каменных и деревянных конструкций первого и второго этажа.

4. Планировочное решение предполагает не только стандартное размещение гостиной, столовой и кухонной зоны на первом этаже, но зону спа с сауной и комнатой отдыха, переходящую в строение с бассейном. На втором этаже по периметру дома из всех спальных комнат есть выходы на балконы, а из мастер-спальни организован выход на эксплуатируемую кровлю с зоной барбекю.

5. Стилистическое и цветовое решение представляет собой сочетание кантри стиля с современным минимализмом. В фасадах используются натуральные материалы дерева, камня, а большие панорамные окна облегчают композиционное восприятие.

Проект был продуман до мелочей и включает в себя разработку архитектурных и конструктивных решений, абсолютно все инженерные разделы, а также ландшафтный дизайн и дизайн интерьера.

Выставка конкурсных проектов
ВЫСТАВКА КРАСИВЫЕ ДОМА - 2026

ФОТОГАЛЕРЕЯ
ЭКСПОЗИЦИИ
КОНКУРСНЫХ
ПРОЕКТОВ

КАК ЭТО БЫЛО
Выставка конкурсных проектов проходит дважды в год (Весна | Осень)

Отзывы

Можно использовать **жирный**, *курсив*, [ссылку](https://example.com), списки через - или 1.
Пока отзывов нет. Будьте первым.