ИК Инновация
Парная для маломобильного населения.
Проект “ИК Инновация” – беспрецедентный случай, когда в одном помещении учтены все нормы безопасности и комфорта для посетителей парной с ограниченными возможностями.
Наша работа в данном проекте заключалась в том, чтобы продумать до мелочей, до самой неочевидной тонкой детали, чтобы люди маломобильной части населения могли сходить в сауну или баню и получить от этого наслаждение.
Далее мы подробнее расскажем о технических характеристиках данного парного помещения:
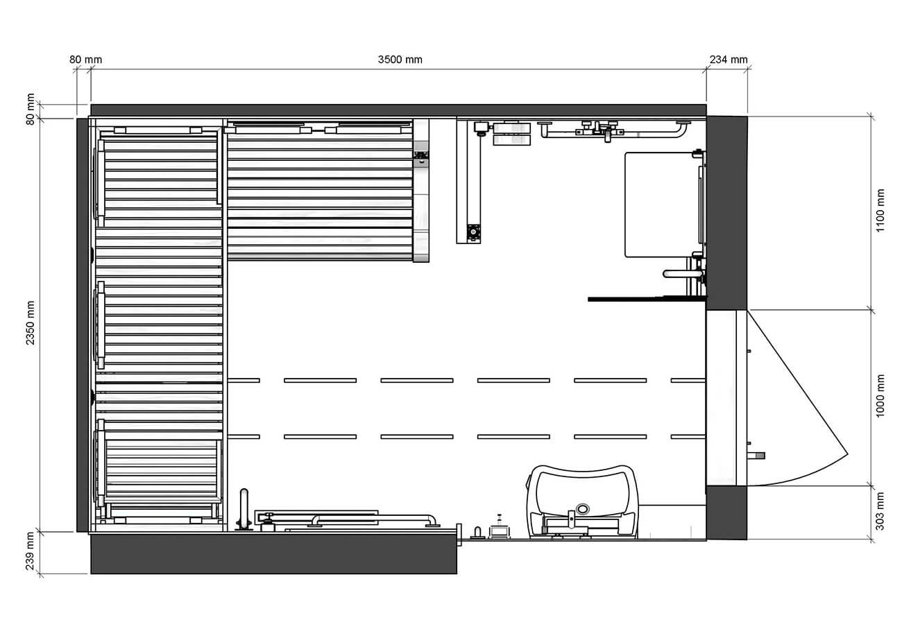
• Практичность и безопасность начинается при входе в парную: Входная дверь в парное помещение имеет широкий проем, установлен доводчик с задержкой автоматического закрывания дверей продолжительностью 5 секунд. Прозрачное полотно дверей выполнено из ударопрочного безопасного стекла. В нижней части дверного полотна установлена металлическая отбортовка для защиты от ударов подножкой или колесами кресла-коляски. Кроме того, дверной проем не имеет порога и перепада высот пола.
• Наличие двух дверных ручек: стандартная ручка находится на высоте 800 мм от уровня пола; диагональная ручка для закрывания в положении «сидя» в кресле-коляске с нижней точкой установлена на высоте 550 мм от уровня пола;
• Душевая оборудована закрепленным на стене складным сиденьем, ручным душем и настенными поручнями. В душевой зоне и около полков, на комфортной для использования высоте, предусмотрен универсальный держатель для трости и костылей.
• В потолок интегрирован душ с возможностью использования в положении «сидя» на раскладном сиденье.
• Над умывальником расположено безопасное зеркало, которое невозможно разбить, так как это отшлифованный металл.
Команда решила остановить свой выбор на ИК панелях в качестве нагревательного прибора для сауны. Одной из причин такого решения являлось желание избежать высоких температур, которые могут привести к нагреванию всех элементов в парной, включая кресло-коляску.
Возле полка установлен специальный опускающийся поручень со стопором для удобства пересаживания с коляски на полок, он же служит ограждением для предотвращения падения с полка. В поручне заложена подсветка и сделана щель, через которую пробивается неяркий свет, который как служит для обозначения данного элемента, так и вносит свой вклад в освещение парного помещения.
Такой проект отлично подойдет реабилитационным центрам, гостиницам и спа-комплексам, а также для частного пользования.
Мы готовы дарить Вам счастье и комфорт!











