Множественный выбор
Выбрать номинацию

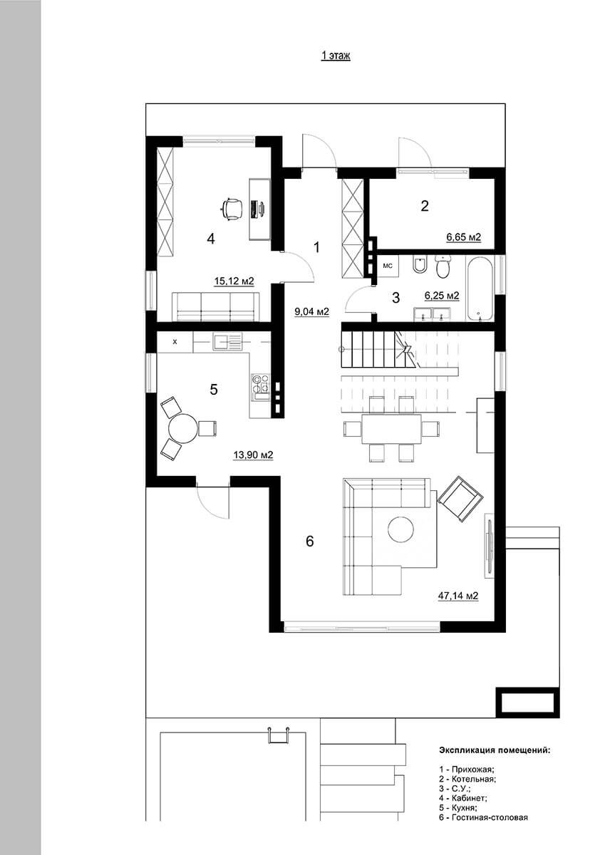
Индивидуальный жилой дом в г. Геленджик*

Частный дом расположен на склоне с великолепным видом на Геленджикскую бухту. Участок небольшой, имеет вытянутую форму, с двух узких торцов ограничен проездами, перепад между которыми составляет около 5 метров. Архитектурная концепция развивалась исходя из видовых характеристик участка, с основной ориентацией на море с одной стороны, и горы — с другой. Около входной группы предусмотрено одно парковочное место под навесом кровли второго этажа. Крытая парковка на две машины размещена на другом торце участка, расположенного ниже по рельефу. Это позволило вписать места автомобилей в выемку скалы и организовать на ее крыше дополнительную террасу. Так же из-за перепада участка торец бассейна получился открытым, выполнен в стекле, что дополнительно открывает вид на море.

Конструктивная схема дома — монолитный каркас выбран с учетом сейсмики участка и больших консольных конструкций.

Внешний вид дома продиктован совместными представлениями архитектора и заказчика о виллах класса премиум и также связан с месторасположением участка.

Для остекления дома выбрана витражная система со сдвижным типом открывания. Такая система позволяет организовать гибкую связь интерьера и окружения дома, что особенно важно для данного участка. Система применена для всех помещений, имеющих ориентацию на бухту и горы из-за возможности стирать границу между домом и природой.

Так как в архитектуре сделан акцент на визуальной связи дома с окружением, конструкции террас и бассейна составляют единую композицию со строением, являясь продолжением жилого пространства. В этой связи особую роль играет уличная мебель, добавляющая комфорт и стиль в окружение и акцентно дополняющая современные минималистские формы дома. В проекте применена обеденная группа и лежаки CIMA LOUNGE Collection от фабрики FueraDentro.

Выставка конкурсных проектов
ВЫСТАВКА КРАСИВЫЕ ДОМА - 2026

ФОТОГАЛЕРЕЯ
ЭКСПОЗИЦИИ
КОНКУРСНЫХ
ПРОЕКТОВ

КАК ЭТО БЫЛО
Выставка конкурсных проектов проходит дважды в год (Весна | Осень)

Отзывы

Можно использовать **жирный**, *курсив*, [ссылку](https://example.com), списки через - или 1.
Пока отзывов нет. Будьте первым.