Индивидуальный жилой дом в п. Старочеркасская Ривьера
Частный дом расположен на ровном участке в элитном поселке Старочеркасская Ривьера в пригороде Ростова-на-Дону.
Участок ровный, имеет трапециевидную форму. Посадка здания выполнена исходя из видовых характеристик участка, с основной ориентацией на р. Дон. После анализа топосъемки поселка и натурных осмотров было выявлено, что река будет видна только на одном краю участка. Это, а так же пожелание заказчика иметь просторный палисадник перед домом, послужило основой для расположения дома по центру участка с левым расположением спален.
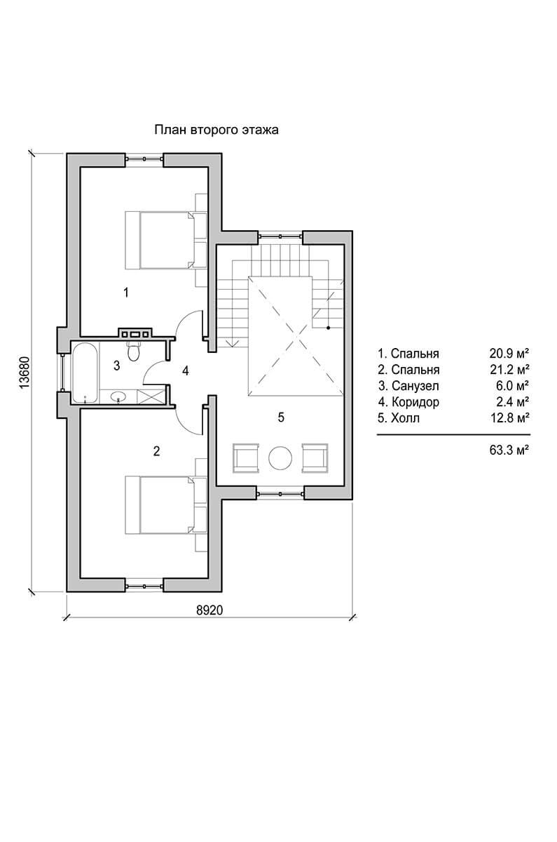
Архитектура здания тяготеет к английским и американским особнякам, здание выполнено из кирпича, имеет несколько террас, просторную гостиную. Спальня хозяев и гостевая спальня расположены на первом этаже, детский блок — на втором. Спальни ориентированы на юг, юго-запад, юго-восток, а хозблок, кухня, санузлы и гараж — на север, северо-восток. На северную сторону также вынесена основная терраса у столовой с зоной барбекю, что особенно важно для жаркого климата.
Образ дома с обилием террас дополнен уличной мебелью от фабрики FueraDentro коллекции SHELL, которая выполнена из современных материалов и имеет строгий нейтральный дизайн.








