Интерьер дома в стиле ар-деко
Проект разрабатывался в уже построенном доме, который простаивал 5 лет.
Для реализации ар-деко необходимы не только внушительные ресурсы — требуется еще очень много терпения и времени. За пять лет работы над интерьерами этого дома архитектор и дизайнер проекта вместе с заказчиками прошли огромный путь — от первоначальных эскизов до детальной проработки практически каждого квадратного сантиметра поверхности…
Собственно, в этом и заключается один из главнейших принципов ар-деко — объединять пространство в единое декоративное целое.
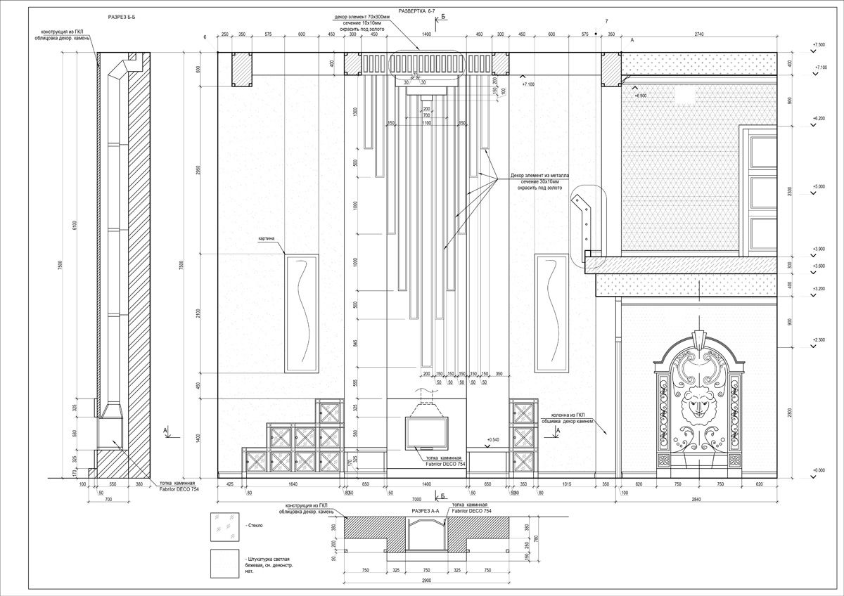
Камин в данном интерьере является одной из важнейших частей дома — мощная композиционная вертикаль гостиной, которую усилили декоративной группой из металлических позолоченных стрежней, а также скульптурной группой, состоящей из ниспадающего Икара с обожженными крыльями и стаи птиц.







