Камин. Поселок Рождествено
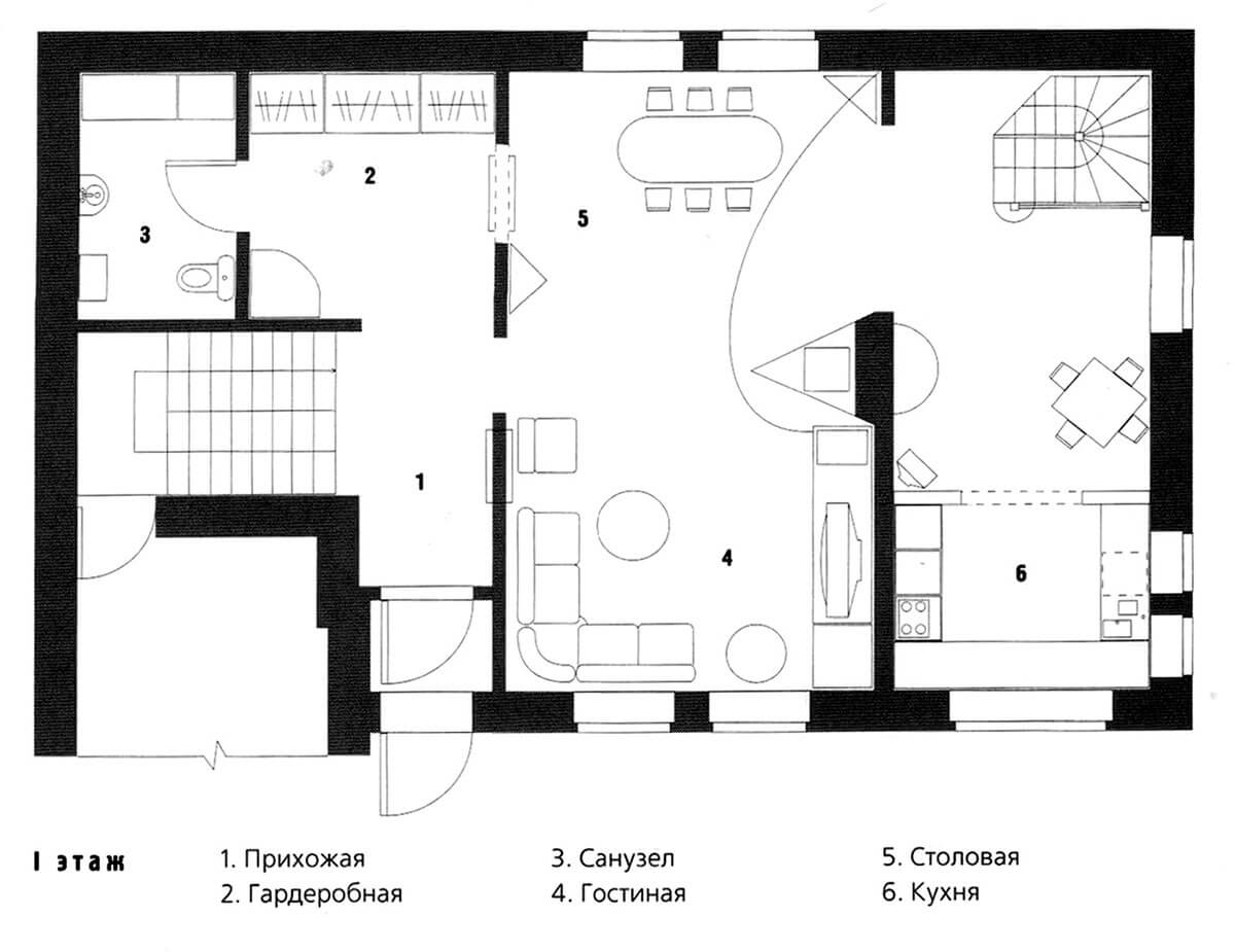
Цилиндрический объем брутального камина с острым треугольным подиумом визуально разделяет пространство гостиной и столовой, являясь при этом доминантным акцентом всей объемно-планировочной композиции. Венчает камин белый изящный завиток, выделенный в пластике потолка, завершая общую пластику камина и создавая особый акцент индивидуального визуального облика. Топка камина и постамент облицованы мрамором.
Отзывы
Пока отзывов нет. Будьте первым.



