Камин в стиле английской готики
Готический стиль в интерьере и архитектуре зародился еще в Средние века, но и на сегодняшний день он не утратил своей популярности. Загадочная привлекательность готики вызывает стойкую ассоциацию с таинственной мистикой. Неудивительно, что именно благородный готический стиль чаще всего применялся для оформления самых величественных замков и архитектурных шедевров.
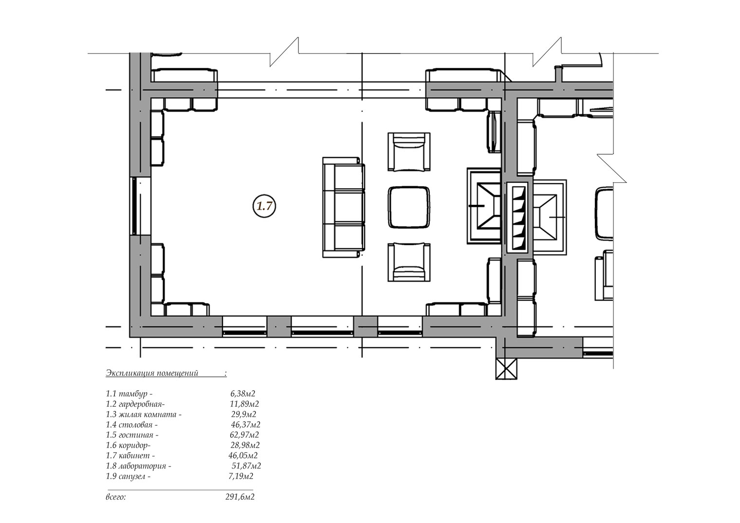
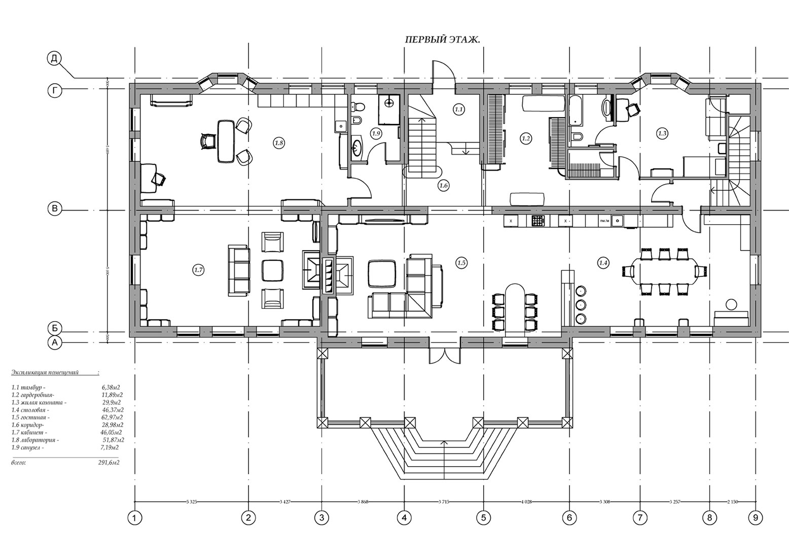
Камин расположен в загородном доме площадью 630 кв.м. На первом этаже представлена общественная зона: приемная, гостиная, столовая и кухня.
Все интерьеры отделывались панелями буазери, натуральным камнем, текстильными обоями и фактурными красками. Особая любовь заказчика к дровяным каминам выразилась в том, что на каждом этаже были спроектированы камины с различной отделкой. Они придают интерьерам незабываемый колорит, каждый из них по-своему уникален.





