Каминный дом у озера
Заказчиком этого объекта является мужчина, который построил каминный дом для личного досуга на одной территории с основным. Это дом для отдыха и развлечений, он находится возле озера, среди дикой природы, вся территория окружена лесом. В любую погоду это уютный дом для времяпровождения с компанией, семейного торжества или романтического вечера, это уникальное место, роскошное и комфортное, наполненное светом и теплом.
Здание представляет собой конструкцию из профилированного бруса, прямоугольную в плане, с двускатной крышей и сложной стропильной системой. Прочность и устойчивость крыши обеспечивают вертикальные несущие элементы — деревянные опорные столбы с подкосами, которые размещены по всему периметру помещения, также сами стены.
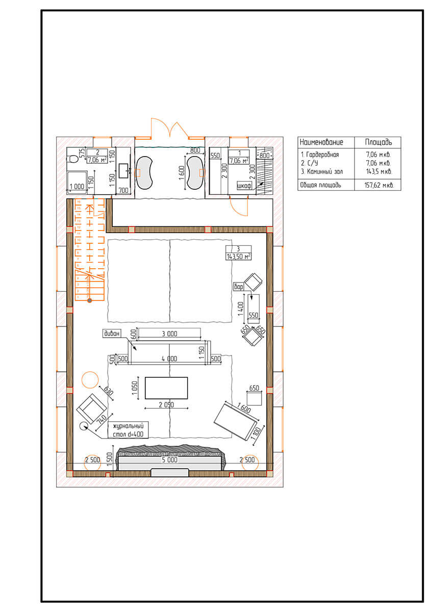
Общая площадь первого этажа — 157,62 кв.м: каминный зал — 143,5 кв.м, с.у. — 7,06 кв.м, гардеробная — 7,06 кв.м.
Стиль интерьера— рустикальный, так как природа диктует почерк образу дома: берет свое начало с экстерьера и окружающей среды и продолжается во внутреннем убранстве. Таким образом, все становится единой гармонией. Конструкции крыши, подчеркивая высоту потолка, приобретают дополнительное свойство — становятся декоративным элементом с их естественной природной грубостью.
Стены имеют выразительный облик, покрыты белой фактурной штукатуркой, перегородки входной зоны облицованы натуральным камнем, окна с подъемным механизмом размещены по всему периметру здания. Виды из панорамных окон — это идеальный элемент, который находится в постоянном динамичном диалоге с интерьером, тем самым создавая атмосферу загадочности и простора.
Главным воплощением концепции является массивный камин высотой 9500 мм с большим очагом 1300 х 3100 мм, который размещен на сколе неоднородного натурального камня талькомагнезита. Это не только стильное и акцентное дополнение, но и экологически чистая горная порода. Нагревается быстрее, чем печной кирпич, выдерживает высокую температуру, не растрескивается от многократных перепадов температур и равномерно нагревается по всему объему. Талькомагнезит справедливо называют теплым камнем. В основании камина заложен полноценный и очень прочный фундамент. Архитектура конструкции весьма простая и традиционная, без изысканных дополнений, закруглений и узоров. Топка открытая, т.к. используется в качестве дополнительного источника отопления. Выложена из огнеупорного шамотного кирпича, он хорошо переносит воздействие высокого температурного режима.
Внешняя поверхность камина покрыта белой фактурной штукатуркой. Прямоугольный очаг переходит в трапециевидную форму — короб, в который заключается дымоход, он заполняет всю высоту от каминной полочки (в основе которой тоже натуральный камень) до конька крыши. С левой стороны от топки размещена встроенная дровница, для хранения отопительных запасов. В этом случае искры не попадают на поленья и подбрасывать их в огонь очень удобно, также непосредственная близости от топки камина обеспечит просыхание дров. Также она по праву считается частью дизайна камина. В качестве оттенков для поддержания простора и масштаба помещения используется в основном теплый белый оттенок в штукатурке и естественный серый (графитовый) цвет необработанного камня. В качестве декора на камине используются настоящие рога оленя, которые размещены над поверхностью натурального камня — акцент, характерный для стиля, символизирующий древо жизни и обладающий энергетическим потенциалом — смелого, быстрого и решительного животного.
Влечение заказчика к природной гармонии выразилось в интерьере, в загадочных формах и текстурах, элегантно дополненным изысканной роскошью. Камин обладает невероятно сильным успокаивающим эффектом, с приятным потрескивающим звуком и завораживающим видом живого пламени, поэтому он является главной концептуальной основной.













