Каминный дом у озера
Заказчиком объекта является мужчина, который построил каминный дом для личного досуга на одной территории с основным. Это дом для отдыха и развлечений, он находится возле озера, среди дикой природы, вся территория окружена лесом. В любую погоду это уютный дом для времяпровождения с компанией, семейного торжества или романтического вечера, это уникальное место, роскошное и комфортное, наполненное светом и теплом.
Здание представляет собой конструкцию из профилированного бруса, прямоугольную в плане, с двускатной крышей и сложной стропильной системой. Прочность и устойчивость крыши обеспечивают вертикальные несущие элементы — деревянные опорные столбы с подкосами, которые размещены по всему периметру помещения, также сами стены.
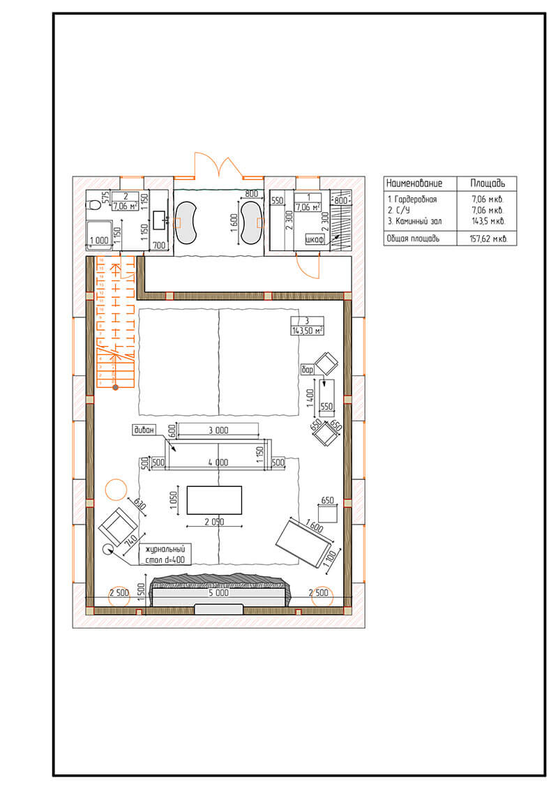
Общая площадь дома по полу первого этажа 157,62 кв.м: каминный зал — 143,5 кв.м, с.у. — 7,06 кв.м, гардеробная — 7,06 кв.м. Площадь второго этажа — 39 кв.м, там размещена комната отдыха с большой библиотекой.
Стиль интерьера — рустикальный, так как природа диктует почерк образу дома: берет свое начало с экстерьера и окружающей среды и продолжается во внутреннем убранстве. Таким образом, все становится единой гармонией. Конструкции крыши, подчеркивая высоту потолка, приобретают дополнительное свойство — становятся декоративным элементом с их естественной природной грубостью.
Стены имеют выразительный облик, покрыты белой фактурной штукатуркой, перегородки входной зоны облицованы натуральным камнем, окна с подъемным механизмом размещены по всему периметру здания. Виды из панорамных окон — это идеальный элемент, который находится в постоянном динамичном диалоге с интерьером, тем самым создавая атмосферу загадочности и простора. На полах дубовый паркет — классика, которая всегда благородна и изысканна, подчеркивает статус интерьера и прекрасно сочетается с окружающим колоритом. Многогранная конструкция крыши обшита состаренной дубовой доской и покрыта маслом мягкого коричневого оттенка.
Эффектный теплый свет освещения является связующим компонентом в объединении древесных текстур и натурального камня. Конечно же, в доме много естественного света за счет больших окон, дополняет его трехъярустная металлическая люстра диаметром 1500 мм, функциональные источники направленного света и зональное освещение — бра и торшеры.
Отопление осуществляется за счет напольных радиаторов первого этажа, воздух в помещении циркулирует более эффективно, нежели при использовании обычной отопительной системы. На втором этаже — вертикальные радиаторы, которые позволяют поддерживать постоянный температурный режим.
Главным воплощением концепции является массивный камин с большим очагом, который размещен на сколе неоднородного натурального камня талькомагнезита. Прямоугольный очаг переходит в трапециевидную форму — короб, в который заключается дымоход, он заполняет всю высоту от каминной полочки (в основе которой тоже натуральный камень) до конька крыши. Архитектура конструкции весьма простая и традиционная, без изысканных дополнений, закруглений и узоров. Топка открытая, так как. используется в качестве дополнительного источника отопления.
Напротив камина размещен 4-метровый диван итальянского бренда Ditre и журнальные столики. Также имеется еще несколько зон отдыха: уединенные — черное кресло Eichholtz с изящным торшером из позолоченного металла в стиле ар деко, кресло-шезлонг у камина и отдаленная зона бара для двух человек у окна.
Этажи соединяет дубовая массивная лестница из бруса с коваными перилами, в то же время она немного воздушная из-за сквозных подступенков и не занимает много места, перила служат ограждением и для второго этажа. Вся атмосфера здесь настраивает на отдых. Уникальности этой зоне придает гамак, надежно закрепленный к столбам. Здесь можно находиться часами, погрузиться в чтение или вести душевные беседы с семьей. Гамак дополняет подвесное кресло на металлическом каркасе. Еще один центр притяжения взгляда, вокруг которого компонуется вся структура интерьера, — глянцевый стол с геометричным подстольем, будто служащий постаментом для настольных ламп в виде собак, которые охраняют личное место, смотря в окно в ожидании своего хозяина. Цветовым акцентом служат плафоны терракотового цвета, добавляя в традиционную и достаточно спокойную цветовую палитру яркий контрастный оттенок. Также присутствует и глубокий синий цвет в лампе первого этажа, металл золотого цвета, светло-серый диван, везде прослеживается динамичная черно-белая геометрия, шахматная клетка, ромбы, прямоугольники, смелые «ломаные» линии, в том числе этнические орнаменты и абстрактные круги — все эти фигуры работают на то, чтобы привлечь к себе внимание. Также и в санузле все построено на черно-белом контрасте с дополняющей текстурой дерева.
Символика декора. Появление глянцевых серебрянных косуль — символа природной гармонии, лаконично дополняющих минималистскую поверхность камина — неслучайно: прообразом послужили жена и мать заказчика — главные женщины в его жизни, стоящие во главе его жизненного пути. Также за основу интерьера взят очаг, и вся концепция интерьера выстраивается от него —большая белая плоскость, как «чистый лист», с которого все начинается. Поэтому окунувшись в атмосферу этого дома, можно отвлечься от обыденной суеты, обрести психологическое спокойствие в единении с природой. Черная деревянная фигура коня — олицетворение храбрости, достоинства и упорства, подчеркивающая мужской характер, также одна из самых интересных фигур в шахматной партии — неожиданный «ход конем» отразился в смешении стилей, игре контрастов, искусной стилизации роскошных деталей ар деко и незамысловатого, построенного на практичности рустикального стиля.
Стоить заметить, что нашлось место и для мистического животного — кошки, олицетворяющей чистоту, грацию и мудрость, которая является надежной покровительницей домашнего уюта. В качестве декора на камине используются настоящие рога оленя, которые размещены над поверхностью натурального камня — акцент, характерный для стиля, символизирующий древо жизни и обладающий энергетическим потенциалом — смелого, быстрого и решительного животного.
Главной особенностью интерьера являются эксклюзивные предметы, со вкусом проработанные детали, торжество геометрии, эргономичное расположение предметов и освещения, смешение стилей — все это доводит интерьер до совершенства.












