Множественный выбор
Выбрать номинацию

КОЛЛЕКЦИОНЕР

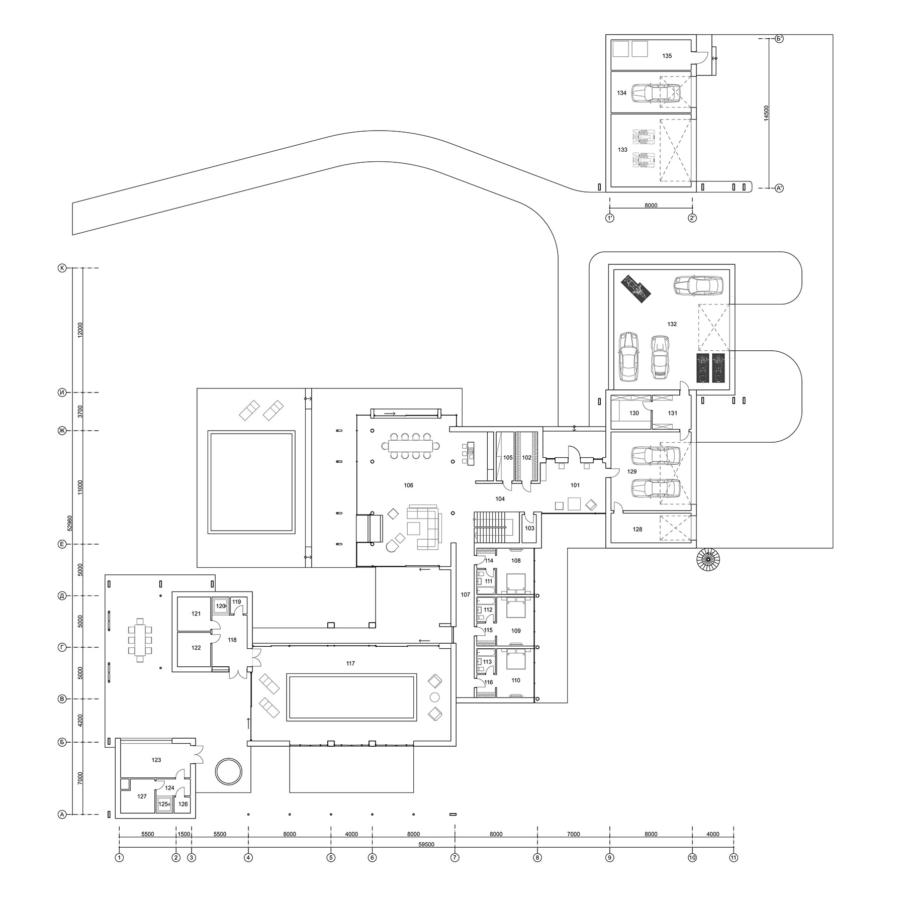
Проект загородного дома разработан для человека, увлеченного коллекционированием редких моделей автомобилей и мотоциклов. Для их размещения в проекте предусмотрен специальный гараж-музей.

Характер и динамичность здания переходят из внешнего пространства во внутреннее, обеспечивая целостность всего проекта. Стилистика дома построена на сочетании металла, дерева и необработанных бетонных поверхностей. Здание лишено декора и избыточных деталей. Интерьер строг и наполнен только самым необходимым.

На первом этаже располагаются несколько гаражей для хранения автомобилей и техники, просторная гостиная с двухсторонним камином, кухня-столовая, гостевые спальни, внутренний бассейн и зоны отдыха. Связь с ландшафтом обеспечивают террасы и панорамное остекление.

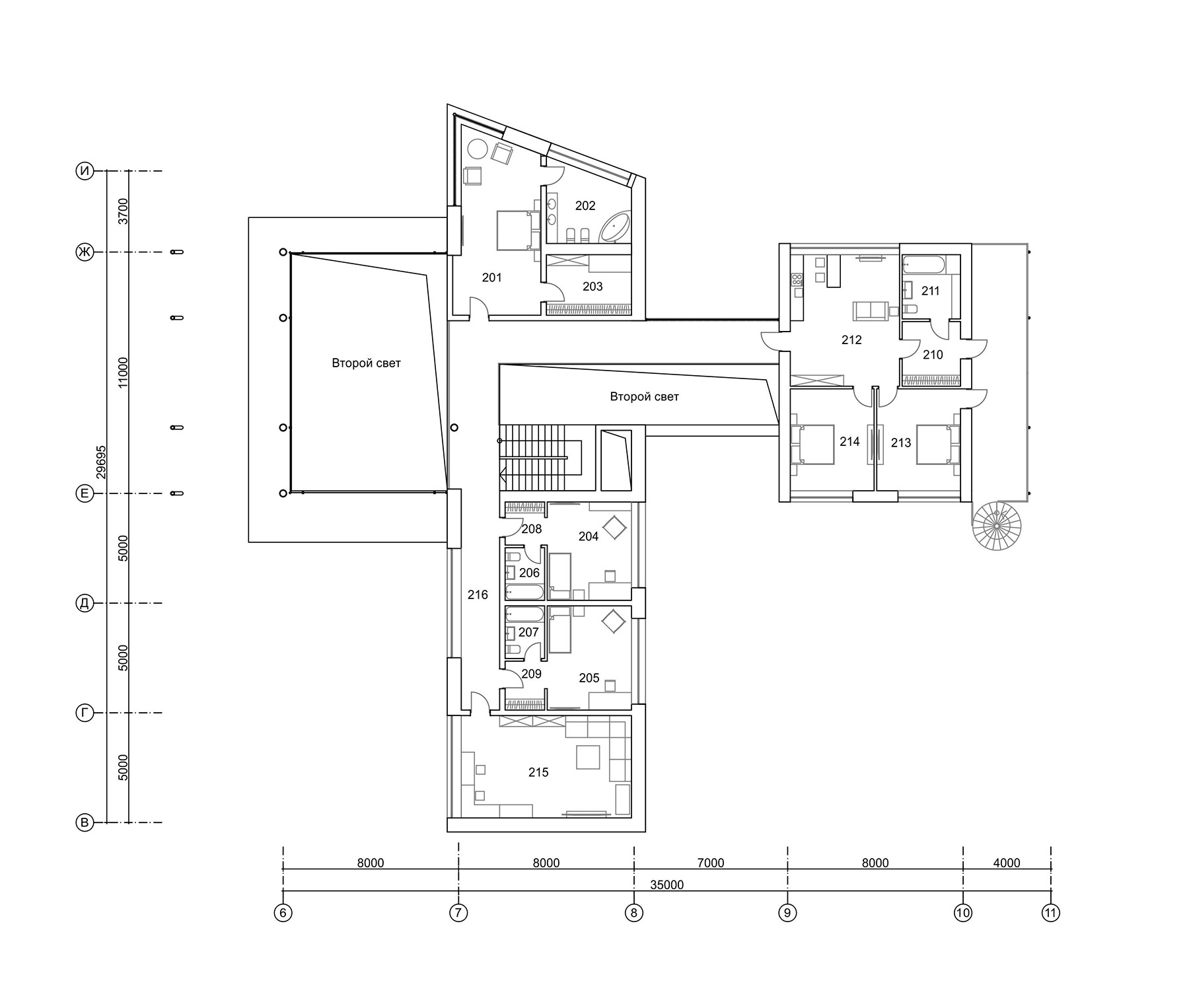
Второй этаж занимают приватные помещения: главная спальня, детские комнаты и комнаты обслуживающего персонала.

Смелая игра форм и материалов придает дому ярко выраженную индивидуальность, тем самым делая его главным элементом коллекции хозяина.

Выставка конкурсных проектов
ВЫСТАВКА КРАСИВЫЕ ДОМА - 2026

ФОТОГАЛЕРЕЯ
ЭКСПОЗИЦИИ
КОНКУРСНЫХ
ПРОЕКТОВ

КАК ЭТО БЫЛО
Выставка конкурсных проектов проходит дважды в год (Весна | Осень)

Отзывы

Можно использовать **жирный**, *курсив*, [ссылку](https://example.com), списки через - или 1.
Пока отзывов нет. Будьте первым.