Коттедж А.В.Д. на озере Нарочь
История этого дома похожа на сюжет пьесы «В ожидании мечты». Как все хорошее, создавался он долго (запроектирован в 2006 году), но благодаря упорству и желанию заказчика «хоть раз в таком доме рыбу половить», все-таки был построен.
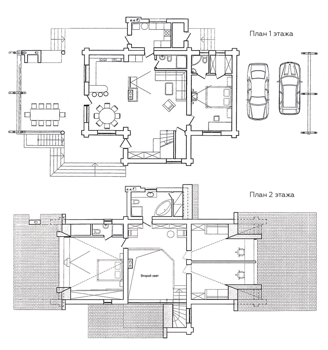
С архитектурной точки зрения этот дом представляет собой белорусскую интерпретацию альпийского шале. Простые и четкие планировочные решения являются отражением «классического» наследия этого стиля. На первый взгляд здесь все просто, даже чересчур. Лаконичные скаты кровли, огромные бревна диаметром 35–45 см. Бревно большого диаметра садится и сохнет очень долго, и «обхождение» с ним должно быть самое внимательное и уважительное. Это кропотливый труд, но какое счастье жить в доме после 7 лет усушки, растрескивания, подрезки зазоров, конопатки швов и шлифовки сучков!
Интерьер его является логическим продолжением экстерьера. Создается впечатление, что бревна стен «проросли» в дом, придав ему изначальный, первородный смысл, и сами структурировали пространство.












