Коттедж в поселке Заозерное
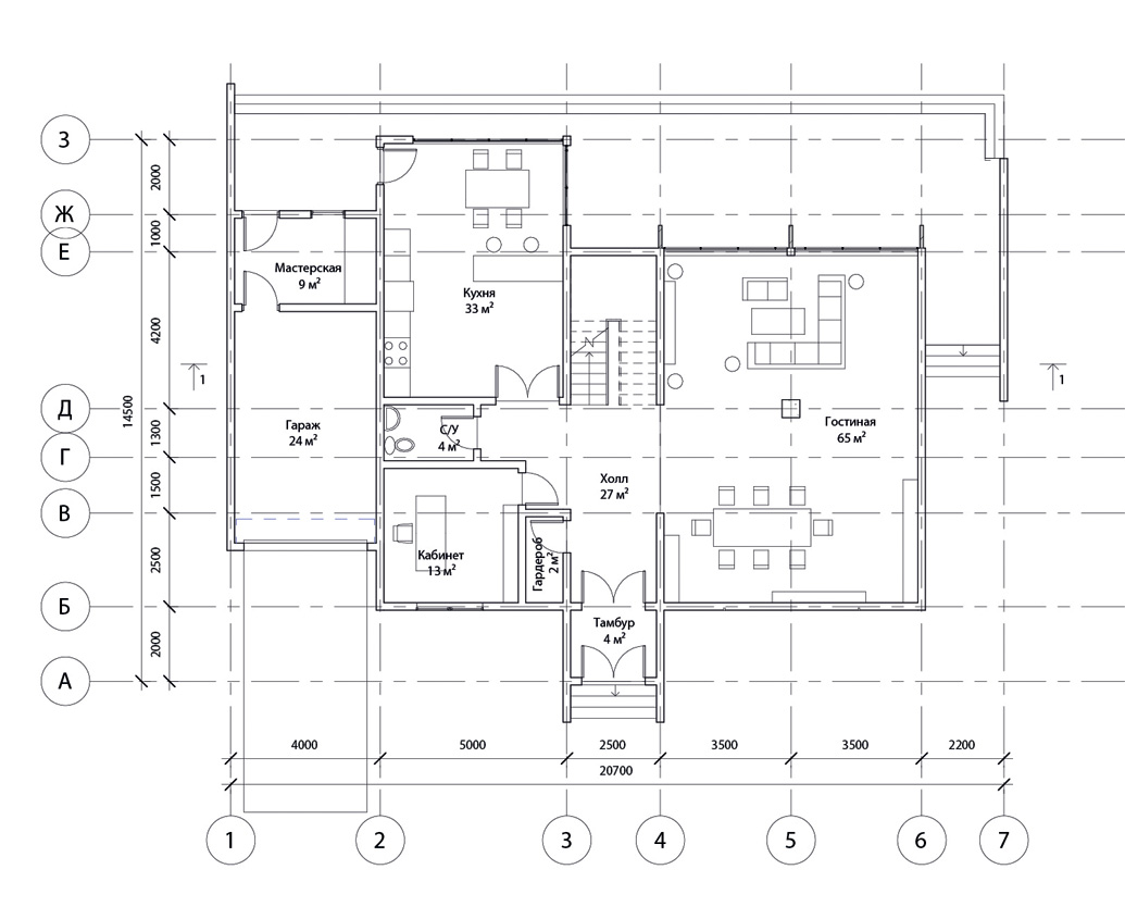
Дом площадью 328 м² расположен в поселке Заозерное под городом Евпатория. Здание состоит из двух прямоугольных объемов, главного двухэтажного объема и примыкающего к нему одноэтажного.
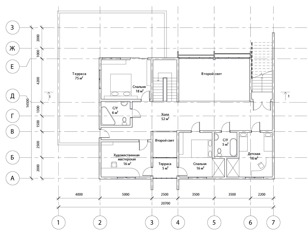
На крыше одноэтажного объема располагается просторная терраса площадью 75 м². Крыша на втором этаже плоская и также является эксплуатируемой кровлей. Со стороны улицы коттедж имеет аскетичный вид, с широкими, невысокими окнами и ярко выраженным блоком второго этажа, облицованного большими плитами белого искусственного камня.
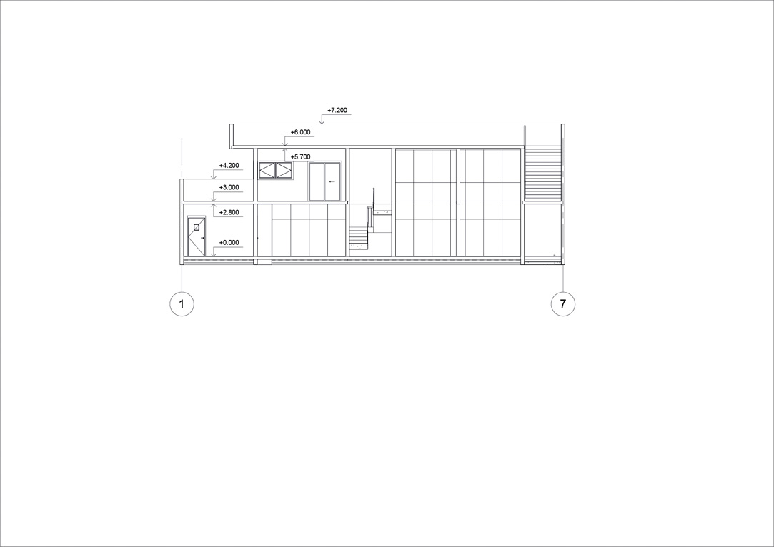
Первый этаж утоплен на 2 метра относительно второго, также для большего выделения второго уровня облицован кладкой из темного естественного камня. Из объема выделяется входная группа в виде прямоугольной арки из белых плит камня, верх которой находится выше уровня парапета на крыше второго этажа.
Со стороны двора здание имеет более открытый вид. Двухсветная гостиная имеет большие панорамные окна высотой в 6 метров, наполняющие большую часть дома солнечным светом на протяжении всего дня. Также кухня, расположенная в одноэтажном объеме, имеет подобное панорамное остекление. Учитывая большое количество солнечных дней в Крыму, остекление в гостиной оснащено солнцезащитными элементами в виде горизонтально расположенных светоотражающих панелей.
В помещении кухни данные элементы не требуются, так как окна прикрываются нависающим объемом террасы. На фасаде с заднего двора также читается форма из двух Г-образных зеркально расположенных друг к другу форм, образованных крайними стенами и террасами двухэтажного и одноэтажного объемов. На первом этаже расположена просторная гостиная, кухня-столовая, с выходом к бассейну на заднем дворе, гараж, мастерская, гардероб и гостевой санузел. На втором - две спальни, художественная мастерская, детская, санузлы и большая терраса. Все это соединено просторным холлом, который в месте примыкания к гостиной имеет вид балкона.









