Множественный выбор
Выбрать номинацию

Квартал Сады Пекина

Фото: Павел Танцерев

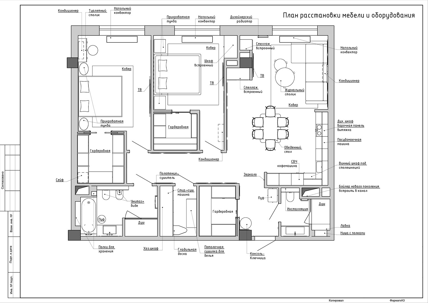
Общая площадь: 120 кв.м

Бежевый, белый, коричневый и серый — именно такую цветовую гамму выбрала молодая семья для своей квартиры. В студию они обратились уже имея четкое представление, каким должен быть стиль — классика в спокойных тонах.

Мы в интерьер добавили золота и изысканности, конечно же, строго следуя предпочтениям заказчика и доверяя своему опыту.

Интересным решением как для нас, так и для хозяйки квартиры стал дизайн кухни-гостиной. Перед командой студии стояла задача вписать в интерьер уже имеющийся белый диван и огромную картину в ярких насыщенных цветах. В итоге диван удачно поместился между кухонным гарнитуром и окном, а картина украсила стену около обеденной зоны.

В гостевой и мастер-спальнях организованы полноценные гардеробные комнаты. А в одной из них еще и замаскировали шкаф за дверью скрытого монтажа. В изголовьях кроватей установили декоративные панели из шпона и в тканевой обивке.

Проектируя коридор с подвесными люстрами и магнитными треками под потолком, в финале мы поставили стеновую панель, облицованную шпоном с зеркальными вставками.

А так как входная группа оказалась совсем небольшого размера, опорой для зеркала в пол выступил фасад части кухонного гарнитура, для хранения верней одежды организовали гардеробную комнату «у входа».

Каждый уголок этой квартиры мы постарались сделать не только красивым, стильным и изящным, но и максимально функциональным. Там, где можно было поставить встроенный стеллаж или шкаф для одежды — они появились. В санузле, где изначально планировалась только душевая кабина, получилась еще и ванна. А сзади гардеробной «у входа» мы выделили место под небольшую прачечную комнату с машинкой, полотенцесушителем и гладильной доской.

Выставка конкурсных проектов
ВЫСТАВКА КРАСИВЫЕ ДОМА - 2026

ФОТОГАЛЕРЕЯ
ЭКСПОЗИЦИИ
КОНКУРСНЫХ
ПРОЕКТОВ

КАК ЭТО БЫЛО
Выставка конкурсных проектов проходит дважды в год (Весна | Осень)

Отзывы

Можно использовать **жирный**, *курсив*, [ссылку](https://example.com), списки через - или 1.
Пока отзывов нет. Будьте первым.