Квартира для семьи из четырех человек
Интерьер квартиры создавался для семьи, состоящей из четырех человек. Для оформления жилого пространства выбраны современная стилистика и светлая цветовая палитра, включившая в себя пудровые оттенки.
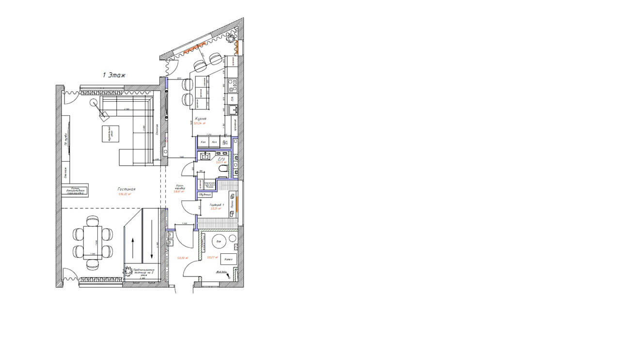
Планировочное решение первого этажа построено по принципу общего пространства — между холлом, гостиной и кухней нет дверей. За счет использования шпонированных панелей в облицовке общественная часть кажется единой. В декоре стен в зоне отдыха использованы деревянные рейки, декоративная штукатурка и фитопанели. На полу светлый широкоформатный керамогранит с минимально выраженной фактурой. Немаловажную роль в создании интерьера играет композиция с биокамином и мебельным комплектомс телевизором. Ансамбль подвесных ламп, висящих на разных уровнях, украшает двусветное пространство над обеденной группой.
На втором этаже устроены две детские, санузел и гостевая-кабинет. В комнате для мальчика стены гардеробной, декорированные грифельной краской, служат холстом для творчества малыша. Здесь нашлось место и для спортивного уголка со шведской стенкой и мини-скалодромом. Кабинет отличают строгое цветовое решение и сочетание глянцевых и матовых фактур.
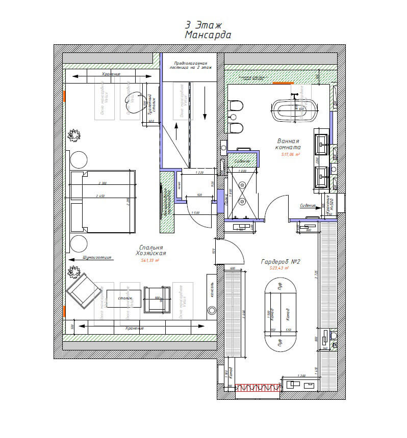
Третий — мансардный — полностью приватный.
Экспликация:
Общая площадь — 280,9 кв.м
Площадь 1-го этажа — 105,0 кв.м
Прихожая — 5,3 кв.м
Холл — 8,6 кв.м
Гостиная-столовая — 56,2 кв.м
Кухня — 21,2 кв.м
Санузел — 3,2 кв.м
Гардеробная — 5,2 кв.м
Бойлерная — 5,3 кв.м
Площадь 2-го этажа — 87,8 кв.м
Холл — 18,2 кв.м
Детская — 17,1; 15,9 кв.м
Кабинет — 15,1 кв.м
Ванная — 9,6 кв.м
Гардеробная — 3,4; 2,3 кв.м
Кладовая — 6,2 кв.м
Площадь 3 этажа — 88,1 кв.м
Спальня — 41,3 кв.м
Ванная — 23,4 кв.м
Гардеробная — 23,4 кв.м













