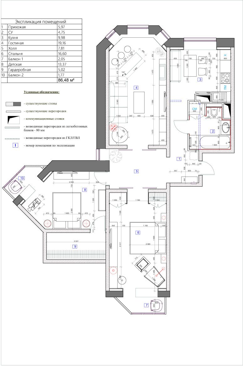
Квартира в Марьино*
Проект трехкомнатной квартиры в современном стиле в Марьино. Задача — организовать светлый функциональный интерьер в обычной панельной квартире с низкими потолками 2,6 м.
В отделке квартиры использованы гипсовый кирпичик, декоративная штукатурка «под бетон», фреска, напечатанная на заказ с иллюстрацией «Симпсоны», натуральный камень, искусственная трава (на потолке прихожей), деревянные балки и вагонка, напечатанные обои, керамогранит и паркетная доска.
Изюминками проекта стали настоящие дрова в ножках барной стойки, полка-самолет, деревянная тропинка на потолке из искусственной травы и электрический камин Dimplex Optiflame Modern (SP16).
Камин обрамлен в портал из керамогранита Austin Dark Grey и является частью стеллажа в гостиной.
Также для декора использована печать на деревянных досках и обработанные маслом портреты заказчика.
Характеристики камина:
пульт дистанционного управления c возможностью выбора режима обогрева и яркости эффекта пламени
бесшумная работа в режиме обогрева
эффект пламени Optiflame
черное обрамление
уникальное нагревающееся стекло
мощность обогрева 1–2 кВт
Эффект пламени работает независимо от режима обогрева
Размеры: ширина 1200 мм, высота 525 мм, глубина 185 мм












