Множественный выбор
Выбрать номинацию

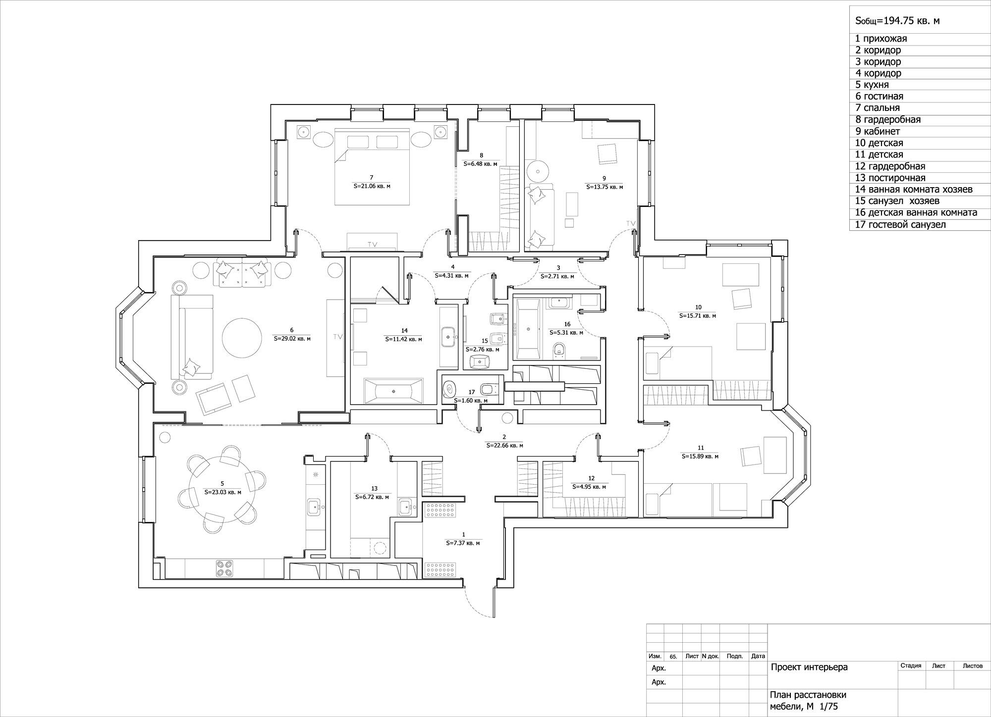
Квартира в ЖК Алые паруса*

Хозяин квартиры, сторонник лаконичной современной стилистики, хотел, чтобы интерьер был выполнен в белом цвете с небольшим вкраплением дерева, а его супруга, любительница классики, мечтала о лепнине и позолоте. Нужно было искать неординарные решения, и архитекторы предложили заказчикам компромиссный вариант, который в результате и оказался реализован.

Немалая глубина квартиры, как это часто случается в новостройках, задала круговой обход вокруг санузлов и ванных комнат в темной центральной части апартаментов. По кругу идет и развитие интерьера: в гостиной и кухне он отсылает к классике, здесь есть и карнизы, и полуколонны из французского гипса. В следующих комнатах стилистика меняется. Спальня «склоняется» к ар-деко, а в кабинете и детских комнатах торжествует сегодняшний день.

При планировании наибольшего внимания потребовала, как ни странно, прихожая — она была откровенно мала для квартиры с классической гостиной. Хотелось сделать ее парадной, просторной, симметричной.

Секрет любого удачного проекта в том, чтобы задавать правильные вопросы, внимательно слушать ответы и использовать только те материалы, предметы, цвета, которые нравятся заказчикам. Хозяйка этой квартиры, например, любит зеленый цвет, поэтому для «фартука» на кухне был выбран оникс, причем материал и оттенок долго обсуждался. Также в отделке стен и пола использован натуральный мрамор.

Выставка конкурсных проектов
ВЫСТАВКА КРАСИВЫЕ ДОМА - 2026

ФОТОГАЛЕРЕЯ
ЭКСПОЗИЦИИ
КОНКУРСНЫХ
ПРОЕКТОВ

КАК ЭТО БЫЛО
Выставка конкурсных проектов проходит дважды в год (Весна | Осень)

Отзывы

Можно использовать **жирный**, *курсив*, [ссылку](https://example.com), списки через - или 1.
Пока отзывов нет. Будьте первым.