ЛАДОГА
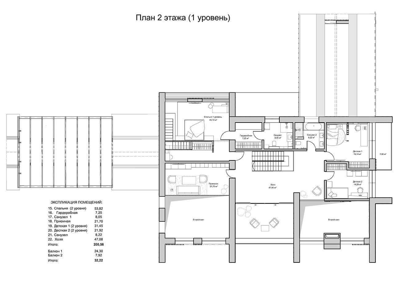
Площадь дома 635 кв.м на участке площадью 2 Га.
Проект уникальной усадьбы, раскинувшейся на берегу живописного Ладожского озера, в окружении заповедных карельских лесов. В основе архитектурной концепции лежит идея дома в стиле барнхаус.
Эко-концепция проекта предполагает максимальное использование особенностей ландшафта, местных деревьев и растений: скалистого берега озера, валунов на участке, соснового бора, мхов и лишайников.
Дом предназначен для круглогодичного проживания гостеприимной семьи из четырёх человек. Усадебный комплекс включает в себя: непосредственно дом с оранжереей, навес для автомобилей, эллинг с баней, причал с каминной зоной.
Отзывы
Пока отзывов нет. Будьте первым.















