Множественный выбор
Выбрать номинацию

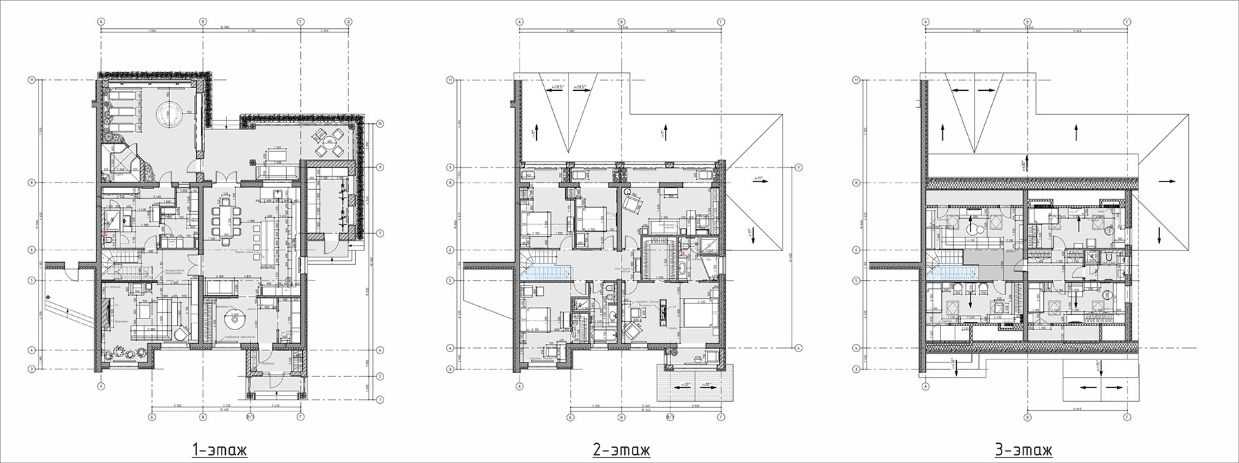
Легкие вариации на тему ар-деко

Дом был спроектирован для большой семьи, для которой важны не только комфорт и удобство, но и эстетическое восприятие пространства — гармония, стиль. Интерьеры этого элегантного коттеджа оформлены в стиле современного ар-деко.

Планировочное решение отвечает всем требованиям удобства и функциональности: просторный холл, роскошные гостиная и кухня-столовая, индивидуальные спальни с санузлами и гардеробными для каждого члена семьи. В интерьере оттенки темного полированного дерева, натурального мрамора, золота и меди изящно сочетаются с современными геометрическими орнаментами, позаимствованными у стиля ар-деко. Колористическое решение — палитра сложных «припыленных» оттенков, благородно контрастирующих с темным деревом, с включением ярких акцентов.

Мансардный этаж оформлен кардинально противоположно — в стиле лофт — и предназначен для многочисленного подрастающего поколения. Здесь все помещения имеют свой образ, они яркие, творческие — как и само детство! Но, несмотря на индивидуальность оформления «взрослой» и «детской» зон, чувствуется сплоченность всего большого семейства.

Выставка конкурсных проектов
ВЫСТАВКА КРАСИВЫЕ ДОМА - 2026

ФОТОГАЛЕРЕЯ
ЭКСПОЗИЦИИ
КОНКУРСНЫХ
ПРОЕКТОВ

КАК ЭТО БЫЛО
Выставка конкурсных проектов проходит дважды в год (Весна | Осень)

Отзывы

Можно использовать **жирный**, *курсив*, [ссылку](https://example.com), списки через - или 1.
Пока отзывов нет. Будьте первым.