Множественный выбор
Выбрать номинацию

Лесная экоусадьба

Загородный дом из цельного бруса расположен на живописной лесной поляне в окрестностях жилого комплекса Новосёлово. Объект создавался как экоусадьба, его архитектура и образ выбраны неслучайно.

Основная идея — создать экологичный бревенчатый дом в старорусском стиле, оказывающий минимальное негативное влияние на людей и окружающую среду. В процессе проектирования были заложены принципы устойчивой архитектуры на всех этапах строительства и эксплуатации. Они также учитывались при выборе природных и возобновляемых строительных материалов, энергосберегающих бытовых приборов и инженерных систем.

Планировочная схема максимально функциональна и компактн, что помогает сделать дом более энергоэффективным. Улучшенная теплоизоляция, системы вентиляции, на которой обычно теряется 1/3 тепла, также работают на идею экодома.

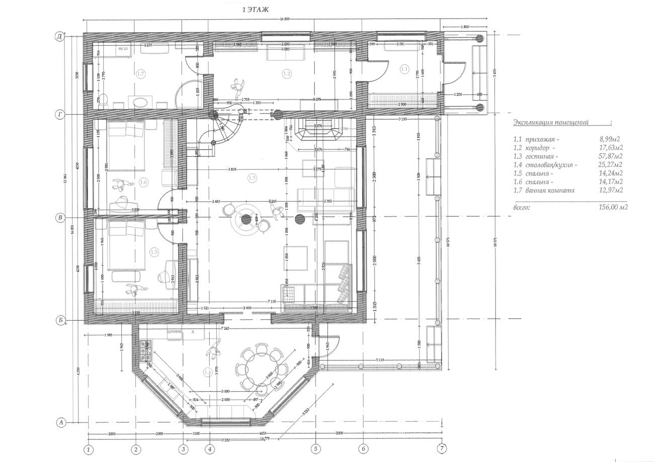
Усадьба построена по принципу функционального зонирования: разделяется на приватную (2-й этаж) и общественную зону (1-й этаж). На первом этаже расположены большая терраса, входная группа, гостиная, кухня-столовая, две гостевые спальни, совмещенный санузел. Общая площадь первого этажа — 156 м2.

На втором этаже находятся три спальни с гардеробами, совмещенный санузел. Общая площадь 2 этажа — 145,4 м2. Общая площадь дома — 301,4 м2.

Интерьер и экстерьер неразрывно связаны и дополняют друг друга. Стилистика усадьбы отсылает к старорусской избе, где человек может отдохнуть от городской суеты, пробок, проблем. Взять перерыв и набраться сил.

Интерьер диктует использование бревен. В гостиной опорный столб становиться барной стойкой. Смысловым центром дома является большой камин, обработанный грубым камнем, вокруг которого собирается вся семья.

В отделке стен и пола используются состаренное дерево и пробка, делающие интерьер теплым, мягким и по-настоящему уютным.

Из современного стиля в усадьбе использованы большие окна и полупрозрачные двери, стирающие границы между домом и садом, наполняющие помещение воздухом и светом, позволяющие любоваться природой в любую погоду.

Выставка конкурсных проектов
ВЫСТАВКА КРАСИВЫЕ ДОМА - 2026

ФОТОГАЛЕРЕЯ
ЭКСПОЗИЦИИ
КОНКУРСНЫХ
ПРОЕКТОВ

КАК ЭТО БЫЛО
Выставка конкурсных проектов проходит дважды в год (Весна | Осень)

Отзывы

Можно использовать **жирный**, *курсив*, [ссылку](https://example.com), списки через - или 1.
Пока отзывов нет. Будьте первым.