Летняя резиденция в Нижегородской области*
Общая площадь резиденции — 500 кв.м.
Концепция проекта — максимальная привязка к существующему рельефу, подчеркивающая ориентацию всего жилого комплекса на пойму реки Волги.
Решение — в самой высокой части участка разместить дом с витражным фасадом и террасой, ориентированными на пойму реки. Рядом с домом, при въезде на участок, хозяйственный блок с навесом для машин. Гостевые дома расположить в нижней части участка, а еще ниже баню с двухъярусными террасами у воды и причалом для яхт.
В состав комплекса вошли индивидуальный жилой дом, два гостевых дома, баня на воде, хозяйственный блок с навесом для машин.
Проект выполнен в стилистике альпийских шале, дополненной элементами архитектурного кантри. Подобная стилистика отлично позволяет проектируемому дому вписаться в сложившийся рельеф с естественным водоемом. Схожие формы и единая по цветовому решению отделка фасадных плоскостей превращают строения в целостный жилой комплекс.
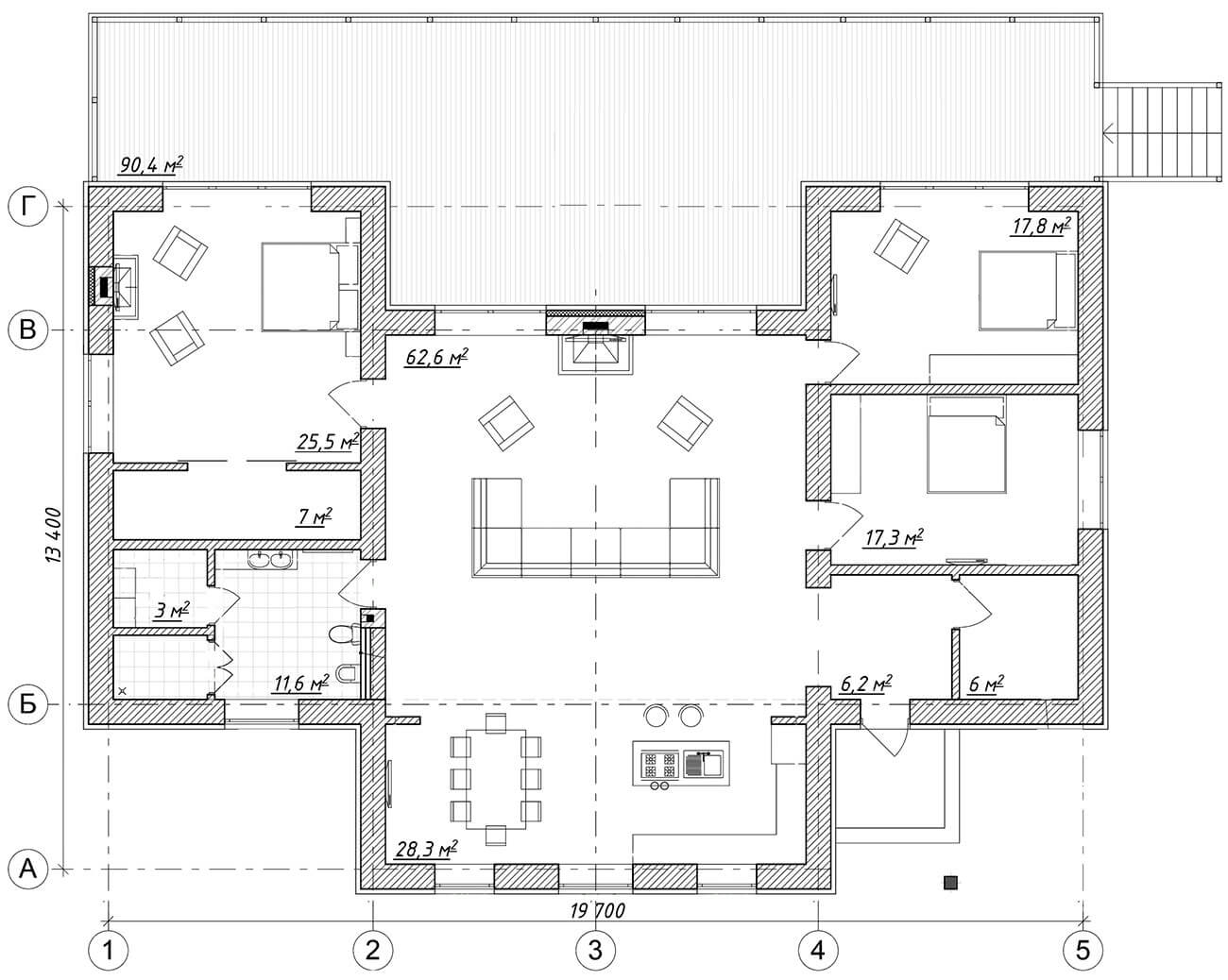
Дом
Все помещения дома располагаются в мансардном пространстве многоскатной крыши, конструктивные элементы которой являются частью интерьера. Основная спальня, две детские спальни, большая ванная с сауной, кухня со столовой располагаются вокруг главной части дома — большой гостиной с камином. Панорамные окна открывают дом воздуху, солнечному свету и создают ощущение единства внутреннего и внешнего пространства. Из гостиной и основных спален дома предусмотрены панорамные окна с выходом на большую открытую террасу. Терраса является вторым ключевым элементом дома и составляет почти 50% его площади. С террасы открывается панорамный обзор на пойму реки Волги.
Баня
Все помещения бани располагаются в мансардном пространстве крыши, конструктивные элементы которой также являются частью интерьера. Основное помещение — комната отдыха с панорамными окнами и выходом на большую открытую террасу.
Терраса представляет собой двухъярусную структуру и имеет площадку под навесом, непосредственно при выходе из комнаты отдыха, а также открытую нижнюю часть, на которой располагаются лежаки для загара. С террасы открывается панорамный обзор на Волгу.
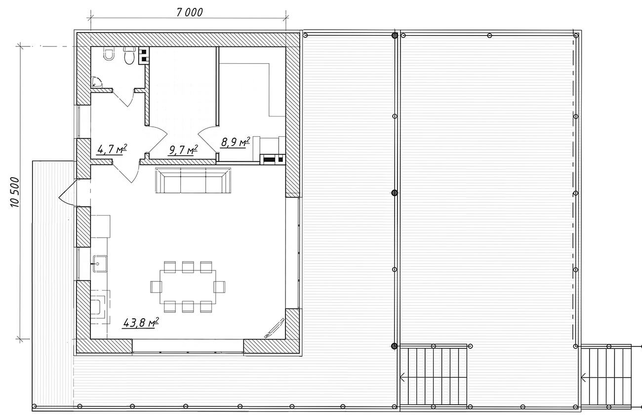
Гостевой дом
Дом для гостей представляет собой два отдельных блока, в каждом из которых может расположиться одна семья. Блоки имеют общую смежную стену и являются практически зеркальной копией друг друга. Здесь также сохранена концепция одноэтажности и мансардного пространства скатной крыши, конструктивные элементы которой являются частью интерьера. Из комнат гостевого дома предусмотрены панорамные окна с выходом на большую открытую террасу, габариты которой позволяют собраться на ней всем гостям.
Отделка фасадов выполнена в стиле шале, строится на природных цветах и имитации натуральных фактур.
Главный элемент фасадного декора — дикий камень теплых оттенков, который отлично сочетается с естественным природным ландшафтом. Вместе с диким камнем в декоре экстерьера используется темная древесина. Она украшает собой периметры балконов и кровельные свесы. Венчает загородный дом скатная крыша, покрытая композитной черепицей.
В качестве снегозадержателей на кровле использованы натуральные бревна ручной обработки.
Главная особенность этого проекта в том, что основной инженерный узел вынесен в здание хозяйственного блока, это дает возможность более эффективно использовать площадь жилого комплекса. В инженерном узле находятся скважина и газовый котел. Разводка труб до зданий осуществляется совместно в одной бухте с трубами отопления. Трубы теплоизолированы, глубина заложения 1 м. На вводах в здание предусмотрены футляры. Все стоки жилого комплекса сливаются в септик объемом 10 куб. м. Септик расположен в нижней части участка.












