Мастер
Проект частного одноквартирного дома по каркасной технологии «Мастер».
Проект дома разработан для Московской области, базой в разработке проекта служат два стиля: бионика и хай-тек. Планировка дома и фасадные решения разработаны для участка неправильной формы, просматриваемого со всех сторон. В результате дом не имеет ярко выраженной фасадной ориентации. Архитектура дома вдохновляется окружающей средой, в лесном массиве которой расположен объект, различные элементы которого пронизаны металлическими стеблям и стволами, несущими кроны-крыши подобно вековым деревьям.
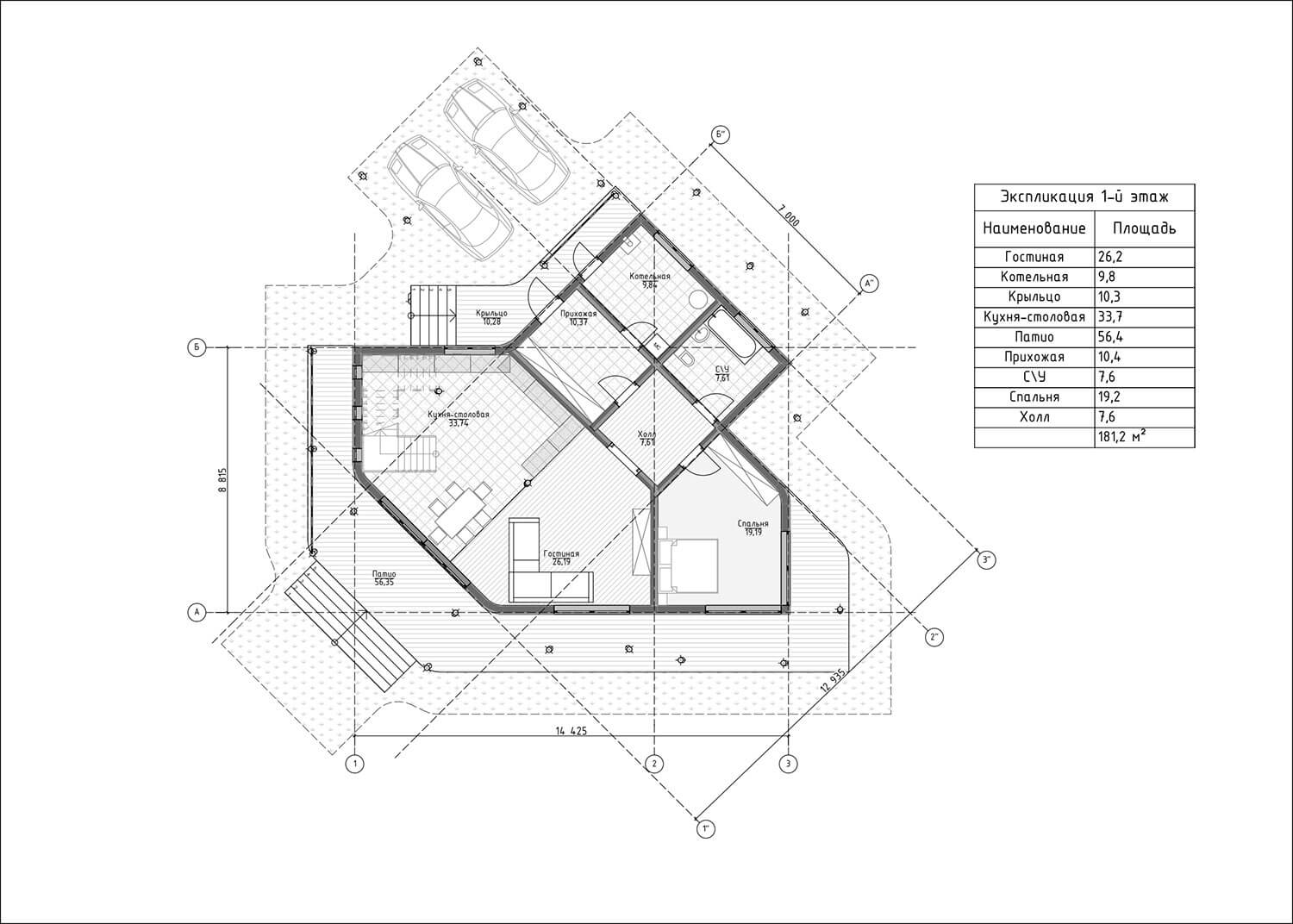
Первый этаж бионического дома вмещает в себя необходимый набор помещений для постоянного проживания в одном уровне. Роскошная open space гостиная-столовая, совмещенная с невероятно просторной кухней, автомобильный навес на два автомобиля, открытая терраса, спальня, входная группа и техническое помещение под газовую котельную.
Второй этаж являет собой спальную зону, приватную личную для каждого жильца, и для каждого дарящего возможность созерцания природы — в каждой спальне предусмотрен балкон, вопреки расхожему мнению балкон уместен при наличии прекрасного вида и наличие этого элемента несет в себе черты квартирного городского образа жизни.












