Мелодия с нотами ар-деко
Фото: Наталья Вершинина
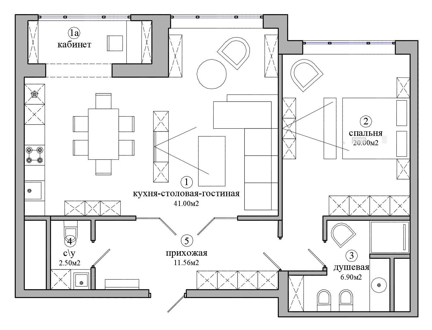
Квартира 80 кв.м в элитном ЖК RED SIDE.
Ритмичность линий и четкая геометрия, прохладная гамма, роскошные детали и ощущение воздуха — такое уютное и элегантное пространство создано для современной бизнес-леди.
То, что заказчица будет проживать здесь одна и не постоянно, а лишь в течение рабочей недели, позволило привнести в проект чуть больше свободы в планировочном решении и сложных, изящных и стильных решений в декоре и колористике.
Квартиру разделили на три зоны:
• холл и гостевой санузел;
• общественную зону, включающую гостиную, столовую и кухню (площадь увеличили за счет присоединения лоджии);
• приватную зону — это изолированная спальня с большой ванной комнатой.
Общественная зона задумана как цельное пространство, в котором четко прослеживается настроение ар-деко. Ломаная геометрия дверей и комода, выразительные и богатые материалы (орех, мрамор, латунь, наборный паркет), обилие глянцевых поверхностей, роскошные светильники…
Одним из базовых акцентов всего пространства квартиры стали прозрачные ореховые двери со стеклянными вставками. Они визуально отделяют зону общественного пространства от прихожей, но при этом пропускают свет и солнечные лучи даже в самые отдаленные уголки квартиры. Что касается помещений, для которых нужна приватность, авторы проекта предусмотрели цельные двери из ореха, которые оформлением перекликаются с перегородками.
Интерьер выполнен в сдержанной, благородной серовато-голубой гамме с акцентами теплых, желтых тонов (в частности, металла и текстиля).
Светлые тона с жемчужным отливом, многоярусная люстра с ниспадающими подвесками, эффектное овальное зеркало — мелодия с нотами ар-деко продолжает звучать в спальне и просторной ванной.
Большое количество мебели и все двери выполнены по эскизам авторов проекта, что привнесло в пространство индивидуальность и изысканность. А безупречный вкус и мастерство дизайнеров позволили создать интересную современную интерпретацию всегда актуального ар-деко.












