Множественный выбор
Выбрать номинацию

Многоэтажный жилой дом в г. Екатеринбурге

Многоэтажный жилой дом повышенной комфортности выполняется в рамках учебного процесса по дисциплине «Архитектурное проектирование» на 4 курсе.

Участок под проектирование расположен в центральной части города Екатеринбург. Перед зданием находится сквер для отдыха и досуга. Территория всей застройки озеленена газонами, клумбами, посадками деревьев и кустарников. Фасады симметричны относительно оси жилого здания и выполнены в классическом стиле. Кирпичные стены обеспечивают высокую степень герметизации, теплозащиты и звукоизоляции помещений. Первый этаж выполнен в темных тонах, чтобы визуально придать статичность и устойчивость основному объему, а верхние этажи – в более светлых. В многоэтажном жилом доме применена каркасно-монолитная конструктивная схема.

Фасады декорированы лепниной и колоннами, сделанными из натуральных камней. Применены современные решения фасадного остекления. Использование сплошного остекления над главным входом в здания с другими классическими элементами наглядно демонстрирует взаимодействие как прозрачных и легких, так и сплошных массивных материалов.

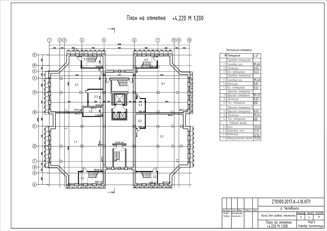
Дом делится на 2 равных жилых блока, в центральной части здания находится лестнично-лифтовый узел. Первые 2 этажа являются общественными и образуют стилобат для остальных этажей, первая часть выполнена под торговые помещения, другая часть – под офисные. Всего в здании 23 этажа. На каждом жилом этаже размещено по 5 квартир: 2 однокомнатных, 2 двухкомнатных, 1 трехкомнатная. Высота этажа 3 м (от пола до пола).

Выставка конкурсных проектов
ВЫСТАВКА КРАСИВЫЕ ДОМА - 2026

ФОТОГАЛЕРЕЯ
ЭКСПОЗИЦИИ
КОНКУРСНЫХ
ПРОЕКТОВ

КАК ЭТО БЫЛО
Выставка конкурсных проектов проходит дважды в год (Весна | Осень)

Отзывы

Можно использовать **жирный**, *курсив*, [ссылку](https://example.com), списки через - или 1.
Пока отзывов нет. Будьте первым.