Множественный выбор
Выбрать номинацию

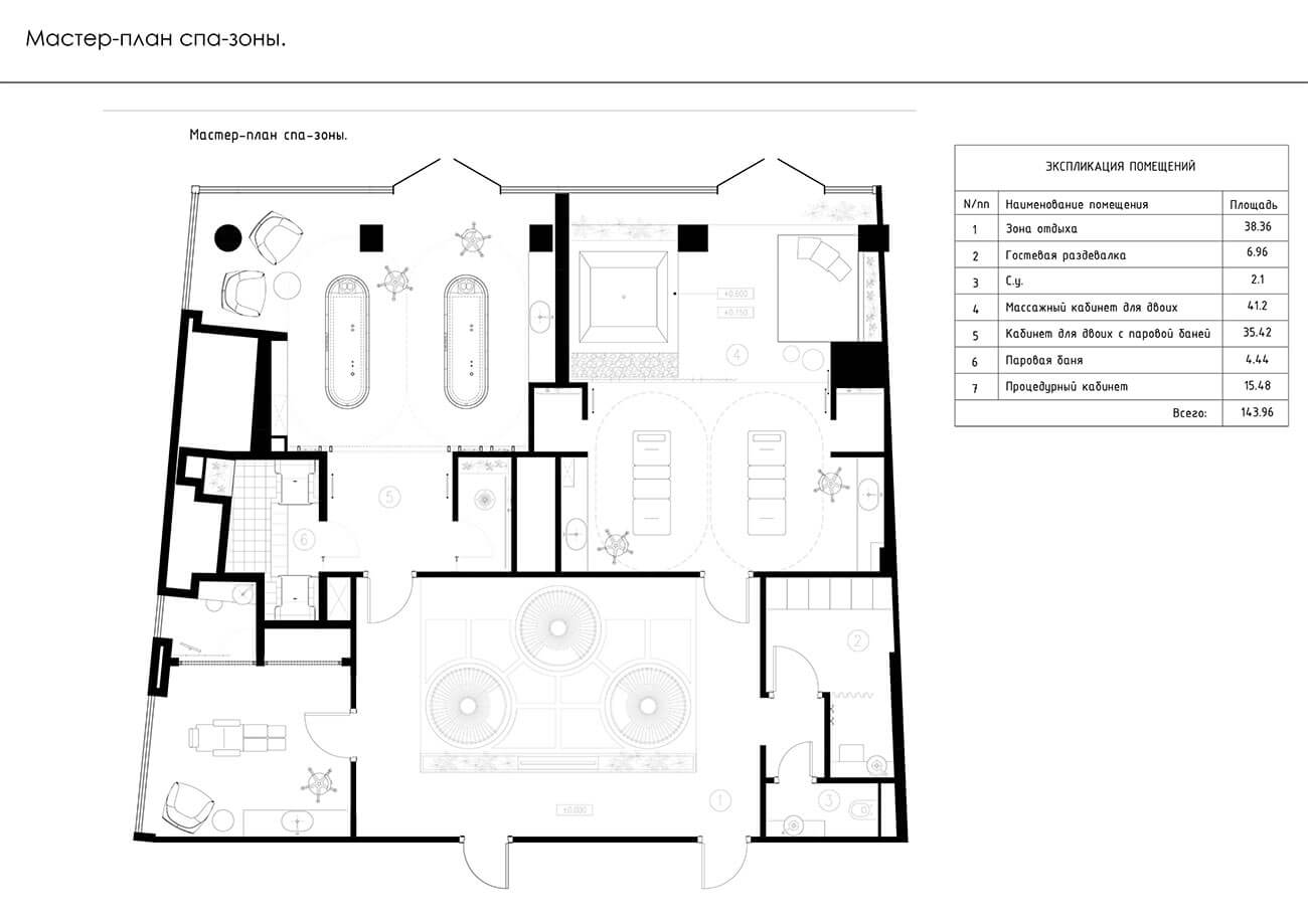
Morion Spa

Описание: 144 м².

Спа сьюты и зона отдыха при отеле 5*.

Собственником было принято решение расширить площадь спа.

Основная задача — продолжить существующую архитектурную концепцию спа, предложив отдельные помещения спа-сьюта для получения спа-услуг, индивидуальных парений и расслабления, объединив их холлом для отдыха и чаепития.

В основе интерьера стиль контемпорари с акцентом на модную тропическую тематику. Сочетание природных материалов и фактур, обволакивающие теплые оттенки в сочетании с самыми модными и современными элементами мебели декора.

Функционально один из спа-сьютов оснащен паровой баней с двумя креслами из шамотной керамики Хилперт и лавкой по середине. Такая эргономика привносит разнообразие во времяприпровождение внутри хамам. Звездное небо, ароматерапия, теплые цвета, южные растения флорариума эмоционально направляют нас в теплый африканский климат. Дополняет впечатления тропический душ, отделанный терракотовым широкоформатным керамогранитом.

Спа-сьют оснащен уникальными керамическими столами Lithos Hilpert, позволяющими проводить как сухие, так и влажные спа-программы, в том числе аюрведические. Автоматическая регулировка высоты позволяет удобно работать специалисту и клиенту.

Второй спа-сьют с большой ванной для двоих из искусственного камня. Ванна окружена зеленью, в отделке стен — плитка с тропическими мотивами. Wow-эффектом является большая душевая панель над ванной, которая имитирует капли теплого тропического дождя.

В этой зоне предусмотрено место для отдыха и релаксации — это теплая водяная кровать.

Процедурная зона отгорожена от влажной легкой нитяной шторой.

Холл для отдыха и чаепития объединяет помещение. Представлен в двух вариантах.

С необычными коконами, где ты можешь изолировано отдыхать и наблюдать за тем, что происходит вокруг, при этом быть скрытым от посторонних глаз.

Второй вариант, более традиционная версия, напоминающая гостиную дома с обилием цветов, ковром и мягкими креслами, где можно отдохнуть с чашечкой чая.

Выставка конкурсных проектов
ВЫСТАВКА КРАСИВЫЕ ДОМА - 2026

ФОТОГАЛЕРЕЯ
ЭКСПОЗИЦИИ
КОНКУРСНЫХ
ПРОЕКТОВ

КАК ЭТО БЫЛО
Выставка конкурсных проектов проходит дважды в год (Весна | Осень)

Отзывы

Можно использовать **жирный**, *курсив*, [ссылку](https://example.com), списки через - или 1.
Пока отзывов нет. Будьте первым.