Музыкальный лофт
«Музыкальный лофт» - это проект квартиры в доме начала 20 века. Метровые стены дома превращают её в крепость, при этом реновация в 90-х годах позволила сделать стяжку и менять перегородки внутри.
Новые хозяева - творческие люди. Муж - основатель рекламной кампании и музыкант, жена - фотограф, любит растения. Вместе они обожают лофт. У них имеется кошка, которая усердно портит дома обои и текстиль.
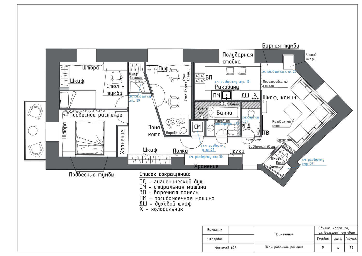
Задачей было создать пространство со спальней, детской комнатой, 2 санузлами, кухней, гостиной и с большим количеством хранения. Сложностью являлись коммуникации по центру квартиры, которые нужно было “обойти” и создать вокруг них грамотную планировку.
Место для санузлов и кухни было предначертано изначально, там же образовалась и прачечная. Кухню отделяет прозрачная перегородка. Гостиная находится в правой части квартиры, таким образом помещение делится на “приватную” и “общую” зоны. Длинный коридор - это череда декоративных витрин и шкафов для хранения бытовых вещей, предметов спорта (помимо мелких - скейтборды и палатки), несезонной одежды. Они отзонировали хранение и при этом визуально “подробили” расстояние. Продуманность - важная “фишка” квартиры. Зона для кошки тоже находится в коридоре.
Самым сложным оказался кабинет, полностью шумоизолирован профессиональными материалами, как в звукозаписывающих студиях. В нём же - стол авторской работы дизайнера с кастомными элементами под каждого члена семьи. Вообще, вся мебель нарисована исключительно под заказчиков.
Возвращаясь в гостиную, следует сказать, что в стене была обнаружена ниша под сейф, в которой дизайнер предложила разместить винный шкаф, а всю зону оформить в виде “барной” тумбы с хранением бокалов и бутылок. На ней - проигрыватель. Все эти пожелания взяты из технического задания от заказчиков. Кстати, вместо стандартного решения тумбы под телевизором можно увидеть шкаф с камином, внутри которого множество зарядок и устройств для ТВ. Кабель каналы проходят скрыто под углом в стене.
Казалось бы, невозможное количество зон совмещены в одном пространстве, благодаря детальной проработке каждого метра: здесь и зарядка для электросамоката, и полубарная стойка, 2 гардеробные, зона отдыха на балконе.
Отдельного внимания заслуживают санузлы, и приём с зеркалом в маленьком гостевом туалете.
Все материалы были выбраны с учетом требований стиля, пожеланиями заказчиков, а также проживания кота-любимца. Старый кирпич здания решили покрасить, чтобы сохранить аутентичность и ощущение исторического места.













