Накшатра для троих
Заказчики дома общей площадью 221 кв.м — семья из трех человек. Проект дома был создан по науке «Васту». Супружеская пара стремится окружить себя натуральными материалами и современными технологиями. Так родилась идея построить и обустроить дом из оцилиндрованнного бревна. Была поставлена задача, сделать интерьер сочным с ярким декором, наполнив его различными фактурами, детально проработанными поверхностями. Поэтому все приемы, все декоративные элементы, которые применялись в проекте, решали эту задачу.
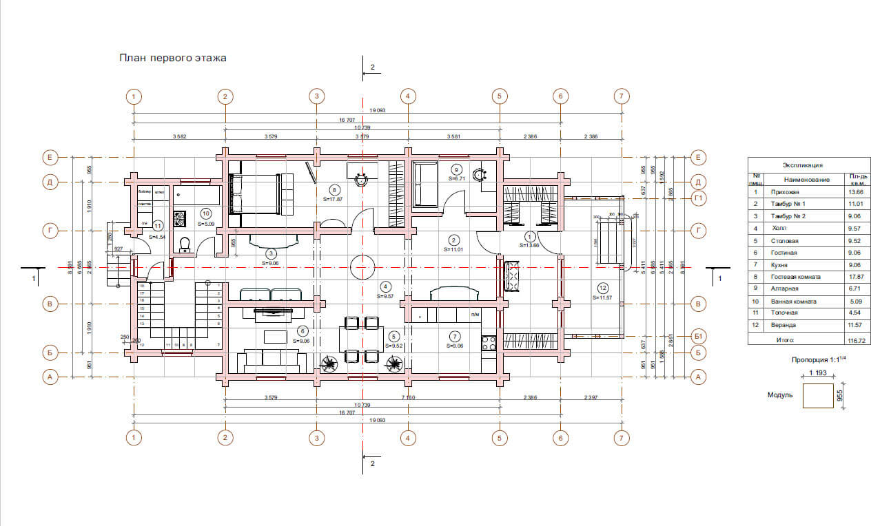
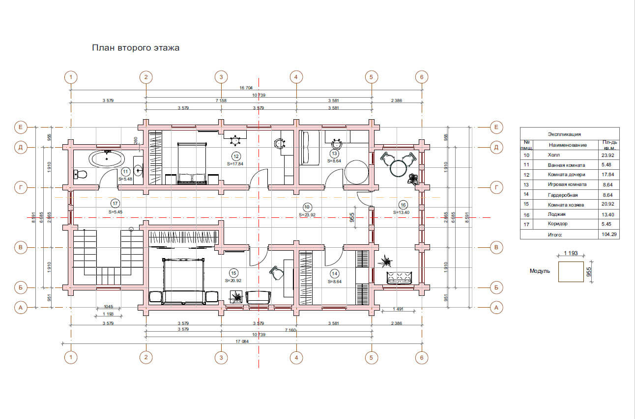
Первому этажу отведено место общественной зоны, второму — приватной. Первый этаж представляет собой перетекающее пространство, объединяющее зоны холла, гостиной, столовой и кухни, переходы между которыми очерчены прямоугольными арками.
Интерьер гостиной, который успокаивает и расслабляет, подбирался с учетом пожеланий комфорта: тканевый диван и кресло, различных зеленых, терракотовых, синих оттенков – в тон подобранный текстиль окон, тонированная древесина стен, а также пол, выложенный доской американского ореха – основа, в которой раскрываются все элементы декора.
Пространство кухни, отделено от пространства столовой и гостиной прямоугольной аркой с кованным элементом. Доминирующим цветом кухни — стал сложны состаренный молочный цвет, в отличие от гостиной и столовой, где царствует зеленый. Объединяют эти три пространства тонированные бревна сосны. Обилие текстиля — занавески, кружевные салфетки, шелковый ковер с цветочным узором – создают атмосферу покоя и тишины, уюта и мягкости. Общее настроение создает не только многообразие цвета в мебели и текстиля, но и сложная архитектура потолка. Освещение первого этажа, учитывая его высоту, тщательно продумано. Потолки оформлены деревянными балками, геометрический рисунок которых в каждом помещении разный. Большая кованная люстра, точечные светильники, вмонтированные в псевдобалки, бра и люстры — фонари, освещающие парадную часть дома, - все эти элементы работают то вместе, то порознь и создают своеобразную световую и стилистическую игру, в которой современные достижения и традиционные представления не противостоят, а как бы дополняют друг друга, усиливая проявление их лучших качеств.










